裝潢佈置、開運風水、生活百寶箱

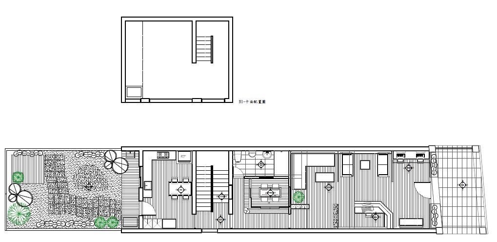
超過 30 年的透天厝,位在繁華的市區裡鬧中取靜,2 樓半的屋型已經很難得一見,更可貴的是還附有寬廣的後院,令人羨慕。業主改建老屋,想讓兒子提早繼承,新世代的接班人大膽提出將老屋改建背包客棧的想法,直接翻轉老屋的新未來。
既是世代傳承的住家,又要接待可能來自世界各地的背包客,生活的衝突、作息的協調、文化的激盪,都為老屋新生注入嶄新的活力泉源;而商業空間與住家空間如何取得平衡?則是震騰設計團隊的腦力大考驗。硬體的改造不難,難得的是要敞開心胸,接納不同種族、不同語言的外地人,愛旅遊的業主將心比心,在參考自己的旅遊經驗後,與震騰團隊討論出多個點子,無論是床頭的私人置物架,或是天花板的吊衣桿,都能讓旅行者備感貼心。老屋新生後,這裡不但是父傳子的家業,也是遊人溫暖的避風港。


私房秘技 x 4
私房秘技 01 從裡到外大改造 透天厝煥然一新
超過 30 年的透天厝改建成背包客棧,為了格局方正,正門口採取梯形收邊做出玻璃小花圃,而紅色的門框圍住一圈玻璃磚,既醒目又能兼顧隱私。
寬廣的後院採取日式庭園造景概念,以白色碎石取代硬梆梆的水泥或柏油,營造令人放鬆的氛圍,不管主人或客人都可以在此漫步,讓緊繃的精神得到紓緩。


私房秘技 02 照明設備巧安排 迎賓廳明亮有趣
一進門,烏黑發亮的黑鏡櫃台迎接來客。1 樓的公共區域依次畫分為上網區、等候區及客廳,因應狹長屋型光線不足的問題,除了在一側做出整排的間接光源外,天花板也做出不同形狀、不同規則的嵌燈,配合震騰獨特精密計算過的斜角半高隔牆、開放展示架等,大大增強室內的明亮度,也讓空間顯得活潑有趣。


私房秘技 03 閱讀燈+吊衣桿 體貼背包客設計
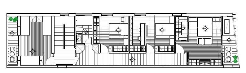
上了 2 樓,剛好位於中間的樓梯將區域分為主人用及客人用。供背包客使用的客房總共有 6 個床位,每個床位都有自己的私人置物櫃及個人光源,就像飛機上的閱讀燈設計,明亮又貼心。此外,天花板上特別釘製的吊衣桿,讓旅行者可以吊掛較長的衣服,還有超大的落地窗及陽台,陽台鋪設可以赤腳踩上去的南方松木地板,也是令人放鬆的角落。

私房秘技 04 狹長走道藝文化 旅店增添溫馨感
不想住家變成冷冰冰的旅館,也希望提供旅人「家」的感覺,在廊道與樓梯的設計上,震騰團隊別出心裁地以實木貼皮柔化氛圍,也做出商業環境該有的大器空間感。廊道與 1 樓公共區域一樣,利用長條的間接光源提供明亮度,再將房門的木質感一路延伸上天花板,端景則是國內知名書法家的作品,讓廊道變身像藝廊般充滿人文氣息。

