裝潢佈置、開運風水、生活百寶箱

建築師只是為了平均分配每個房間的面積,差一點兒讓這棟自地自建的透天厝變成「有稜有角」的怪怪屋格局,幸好有建築業背景的業主及時發現,透過網路搜尋,找上蒔築設計團隊在毛胚屋時期就進行搶救,總算讓新家完美亮相,還為家族寫下一段孝順故事。
有建築業背景的業主對父母相當孝順,堅持把全屋子最好的房間留做孝親房使用,而妻子對公婆更是用心,不時與蒔築團隊討論,要把婆婆喜歡的花樣融入設計裡。原本依照建築師的設計,1 樓是業主經營的商業空間,2 樓是客廳、餐廳等公共空間,而 3 樓與 4 樓各隔出 2 間附有衛浴的套房,供祖父母、業主夫妻及 2 個女兒使用。建築師一心想著「公平」,在空間配置上希望做到每層樓的2個房間面積一樣大,結果分隔牆幾乎變成「工」字型,造成房間裡彎彎角角很多,形成許多難以使用的畸零地,反而浪費空間。
蒔築團隊在毛胚屋階段接手後,透過幾次的溝通協調,掌握業主的孝心,以及 2 個女兒不同的個性,站在「以居住者為本」的角度思考,更改原先格局,雖然一樣是 4 房的設計,但有大小之分,而且依照居住者的習慣、個性做分配,搶救成功,也讓空間分配更有層次感,達到皆大歡喜的局面。



私房秘技 x 4
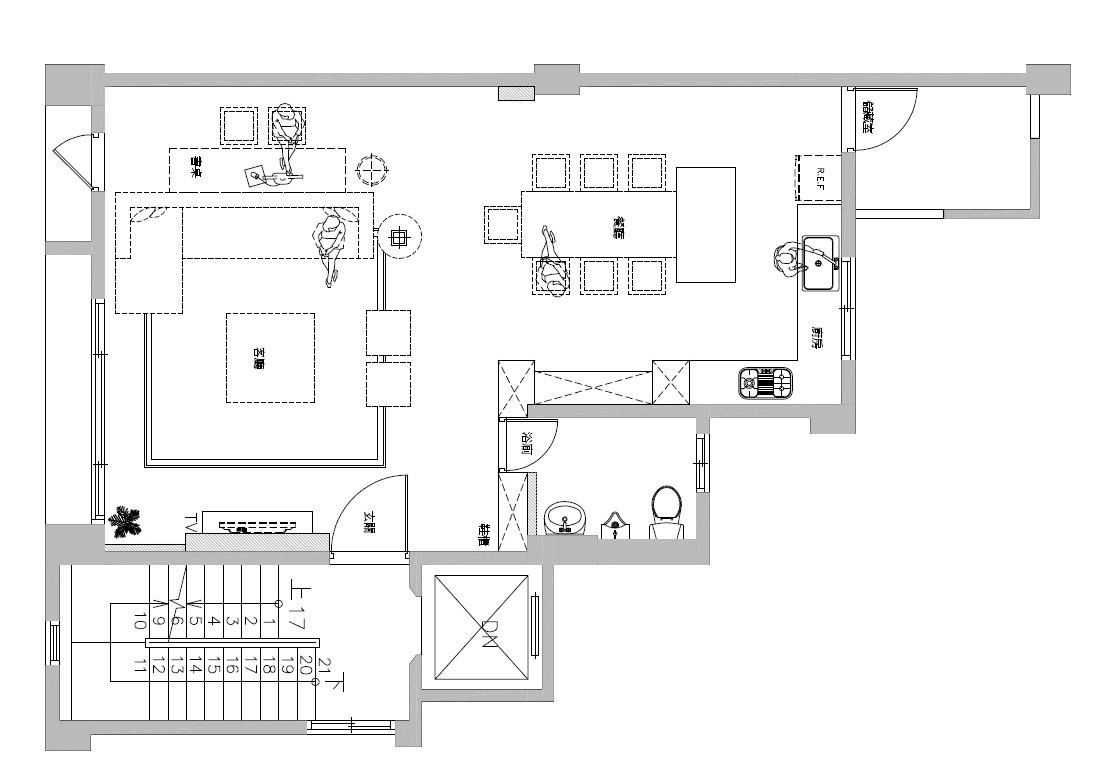
私房秘技 01 玄關門納入電視牆 拓展客廳大器感
如果依照原有的設計(可參考上方2樓平面圖),客廳受限玄關的出入口,會變得太狹長。於是利用電視牆延伸左右 2 邊,把玄關入口也納入線板設計,擴大寬度,營造客廳的大器感。


私房秘技 02 整排收納櫃藏客浴 公共空間好清爽
在與玄關呈垂直的整面牆收納櫃裡,其實隱藏著公共衛浴的入口,設計相當巧妙,完全不會影響到客廳連結餐廚空間的視覺美感。開放式的廚房以人造石中島與餐廳連結,燈飾及壁面呈現 bling bling 的時尚感。

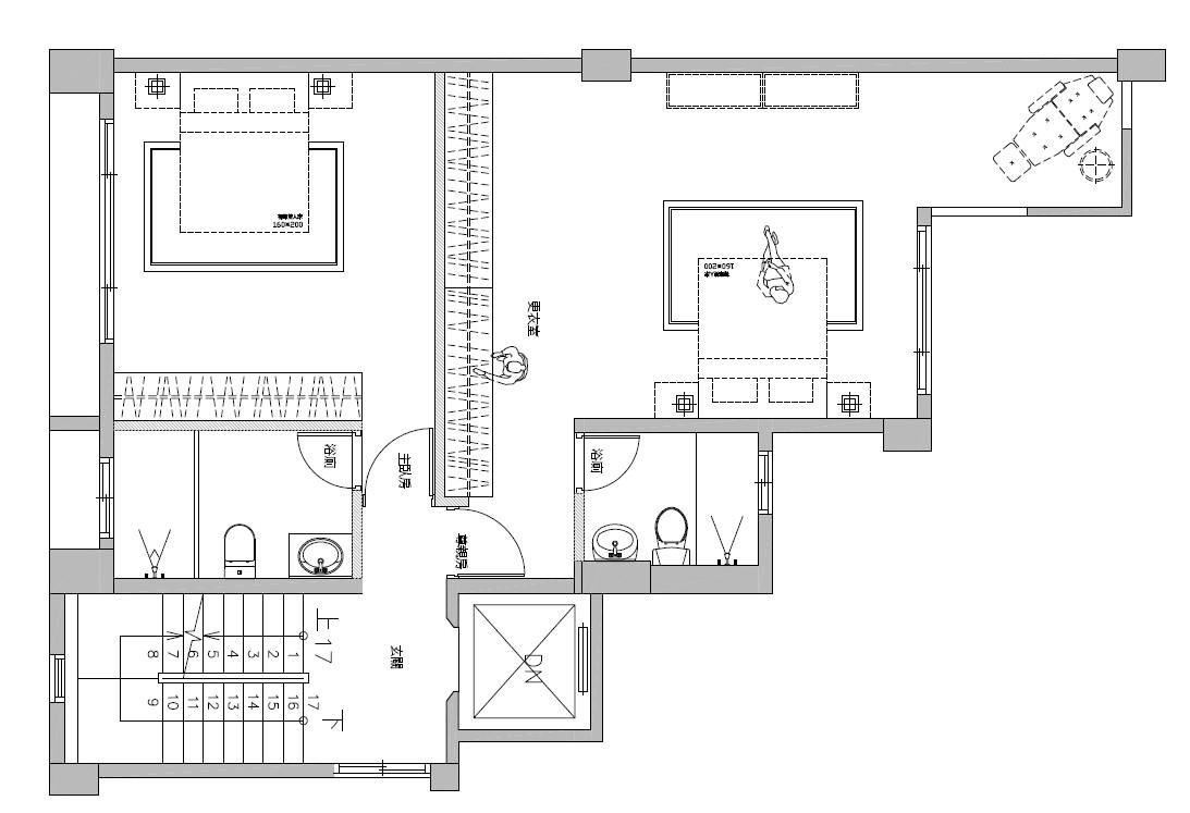
私房秘技 03 最好的房間給父母 軟體布置展孝心


私房秘技 04 大女兒房方中帶圓 貼近主人真性情


小編看設計:令人驚喜的客製化服務
蒔築團隊的客製化服務,在本案中充分發揮。從主臥房的土耳其藍到小女兒房的 TIFFANY 綠,都相當符合居住者的個性,而所有的床組更是 MIT 客製化,滾邊各有不同,各自繡上房間主人的名字,無論質感或設計,與重新規畫後的空間一樣,令業主一家人又驚又喜。

