裝潢佈置、開運風水、生活百寶箱

雖然開放式格局可以擴大視覺空間,但不見得有適合的生活動線,專業的設計師會「因地制宜」,依照業主的需求,在必要的區塊做出各類「隔間」,無論是以櫃體代替實牆,或是採用穿透性強的玻璃拉門,區隔空間之餘也增加生活機能,讓室內空間更有變化層次。
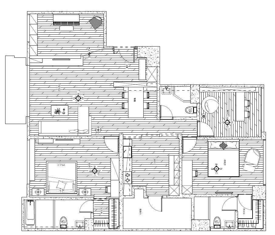
在這個 45 坪的新成屋裡,浩室空間設計團隊在原本開放式的空間裡增設 3 面牆,第1面是利用頂天立地的雙面超大收納櫃,隔出玄關及餐廳空間;第 2 面是客廳的半高電視牆,區分琴房以及客廳的使用範圍;至於第 3 面牆,則是在開放式的廚房做出玻璃拉門,不會影響視覺及光線的穿透,卻擁有隔絕油煙及節能的超強機能,還能靈活開關。
因為這 3 面牆,在單調的公共空間「變」出玄關、餐廳及琴房等區塊,也避開風水禁忌;同時在牆面上巧妙設計,既不影響使用面積,反而大幅增加收納機能,一舉數得。
BEFORE

AFTER

私房秘技 x 4
私房秘技 01 雙面櫃隔出玄關 創造無敵收納量
原本空盪盪的入口處,讓人一進門就能看到屋內、甚至主臥室。以深度超過 60 公分、寬度接近 200 公分的超大櫃體取代屏風與實牆,做出玄關空間,特殊的木紋以及鏤空的把手,營造出端景效果。收納櫃可以雙面使用,末端處供餐廳使用,容量相當充足。

私房秘技 02 架高地板當琴房 珪藻土調節濕度
寬敞的客廳利用架高的地板、半高的電視牆隔出琴房,斜角的入口設計增添空間趣味,也順利導引動線(上圖)。特別的是,電視牆以木作塗上可以調節濕度的珪藻土,以保護鋼琴所需要的濕度(下圖);而牆面採用色粉調製出特別的鐵灰色穩住空間氛圍,木作的檯面在靠窗處配合鐵件做出具有設計感的開放層架,簡單又大方。


私房秘技 03 廚房冷氣不外洩 馬賽克牆夠時尚
業主希望在廚房裝設冷氣,加上空間的需要,浩室團隊利用玻璃與鐵件為原本開放式的廚房,做出清透的玻璃拉門,成為增設的「隔間牆」。冷氣的出風口位於右側烹調區塊上方,讓主人在料理時不必汗水淋漓,而玻璃拉門既不會影響光線的流通,又能在開冷氣時防止冷氣外洩,也可以隔絕油煙。
值得一提的是,配合現代化廚房調性,浩室團隊貼心地採用色調柔和的馬賽克磚做為牆面,注入時尚元素,卻又容易清理。

私房秘技 04 木皮延伸空間感 質樸主臥好療癒
主臥室從半高的床頭背板,到通往更衣室、衛浴的拉門,都以梧桐木貼皮呈現一致性視覺效果,讓人感到空間的延伸及連貫性,連床頭櫃也是一系列客製化,營造質樸的休閒氛圍。拉門的設計比開闔門彈性,也可以更省空間,雖然看起來比較狹長,那是因為扣除門框、拉長高度,進出的寬度與正常的門一樣(左圖)。
其實為了讓訪客不要一進大門就看到主臥室的房間門,浩室團隊在原本客廳的牆面上運用巧思,以厚厚塗層刷滿整面牆,再把房門隱藏在牆面裡,也有加大客廳空間的效果。

小編看設計
擅長北歐+簡約風格的浩室團隊,相當注重環保,在裝修過程中都儘量保留好的建材加以運用。例如本案中孝親房的房門就加以保留,只是採取噴白處理,以符合整體的空間調性。主持設計師邱炫達解釋,因為是新成屋,什麼東西都是新的,還好好的,如果拆除丟掉豈不可惜?能夠物盡其用,也是為地球盡一分心力。
