裝潢佈置、開運風水、生活百寶箱

收整多餘隔間、納入美型收納 打造動線的黃金比例!
除了風格營造外,林欣璇設計師在本案更著重動線流暢度與收納設計,在充滿柔美鄉村氣息的空間巧妙納入大量美型收納。另外更依據屋主一家 3 口需求客變預售屋,小 4 房化為大 3 房,成功達到縮短狹長廊道、增設主臥更衣間與女兒房用度等目的,讓 38 坪空間產生緊密串連。
設計師解讀屋主需求
1.重整格局,打造比例均衡的公私領域
2.美型收納,無形收整大小家電、用品
3.風格營造,柔美紓壓的歐式鄉村居家
設計 K e y P o I n t X 5
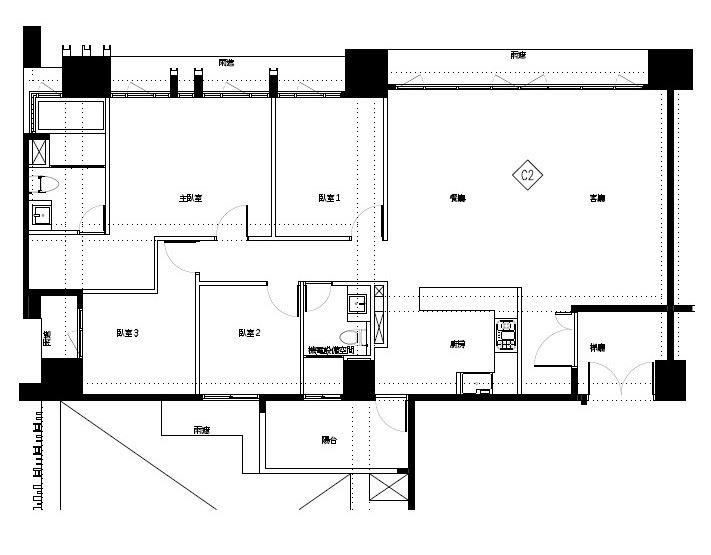
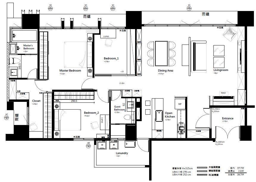
Key Point 01 格局 公、私的黃金比例!微調 4 面牆 小 4 房變大 3 房!
由於人口單純,設計師調整隔間牆位置,挪移第 3 間臥室,將狹小 4 房化為寬敞 3 房,餐廳後方的獨立書房更能兼具客房用途。
BEFORE

AFTER


Key Point 02 收納 看不見的最厲害!美型、機能兼具的收納設計!
由於屋主夫妻因工作時常飛行,希望能貼合職業需求,在玄關、電視牆、主臥設置大面積隱藏櫃體,滿足各式行李箱、大小型家電等用度;更以櫃體取代隔間牆,處處打造美型、實用兼具的收納機能。




Key Point 03 展示 量身訂做的甜美嬌點 我家宛如電影場景!
長期在世界各國旅行的結果就是蒐集各國的杯盤與紀念品,設計師依據屋主的需求,以柔美的藍紫色調塗刷壁板,打造一面專屬展示櫃牆。

Key Point 04 動線 打造流暢動線 開放空間的無形分野
客廳與餐廚為開放式空間,設計師適當沿用原有動線並加以設計,讓三個場域得以流暢串連、不顯擁擠。



Key Point 05 風格 以家具為主體 創造唯美輕盈的鄉村風情
主人與設計師皆對家具非常講究,因此在設計初階段時,設計師便以布織沙發、釘扣單椅與原木餐桌椅的尺寸與色彩為主體發想,讓居家空間從大方向到小細節零違和!

設計師札記
林欣璇設計師建議,當難以決定居家風格時,不妨以喜好的家具款式作為定調,假如同時想要擁有鄉村與現代風格,若選擇偏向現代風格的家具,則可以現代風為主體,佔 70% 的比例,鄉村風則佔 30% 作為點綴。