裝潢佈置、開運風水、生活百寶箱
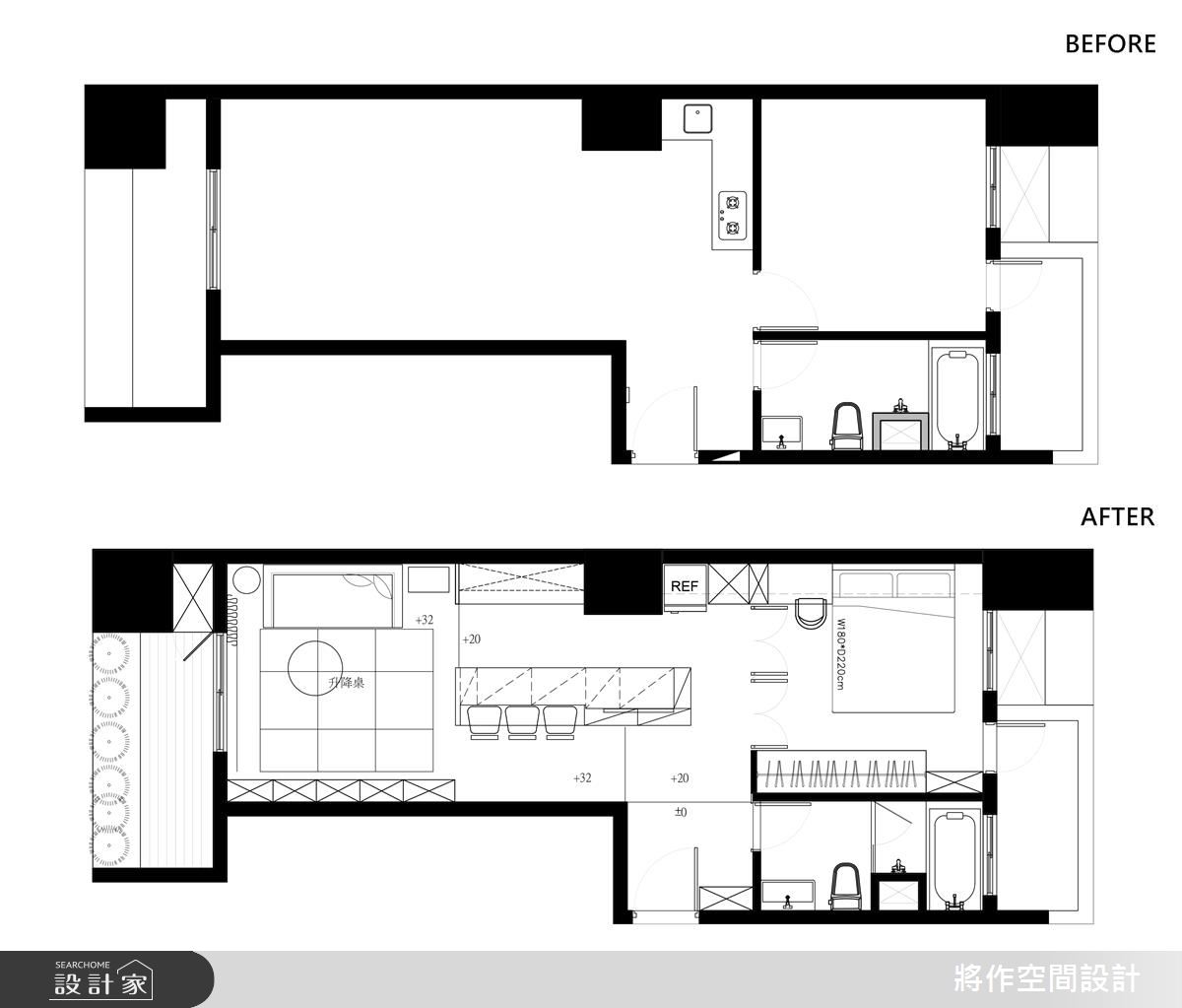
18 坪現代風居宅,雖然本身具有 3 米 3 的屋高,卻是採光面不足的狹長屋。在本次空間規劃中,如何善用屋高的優勢條件?如何將走道位置隱性融入生活之中?以及,臥室處的實牆是否有存在的必要性?將作設計從這 3 個角度出發,為屋主打造流暢的空間動線,並創造更大的坪效。
考量到家中的使用人口單純,設計師將臥室牆面拆除,並以 4 扇雙開不銹鋼噴漆門賦予輕盈、彈性的領域分界,動線、採光也變得更加流暢,中段則安排為廚房用途,藉由樑柱深度配置廚具和冰箱,使立面線條整齊一致,加上中島餐桌、電器櫃等機能性,減少了格局的封閉感和放大使用空間,無形之間也塑造了環形的流暢動線。架高的木地板區域連結客廳,地板的九宮格切線下方也暗藏玄機,隱納了充裕的收納機能和升降式桌椅,可依據使用需求,讓客廳變身為和室,或是休閒、閱讀空間,滿足不同的生活情境。
小編的最愛
善用 3 米 3 的屋高條件,賦予地坪高度更豐富的階段層次,既可作為空間的隱形界定,在不影響空間的舒適度前提下,也為屋主創造了大量的收納機能。








