裝潢佈置、開運風水、生活百寶箱

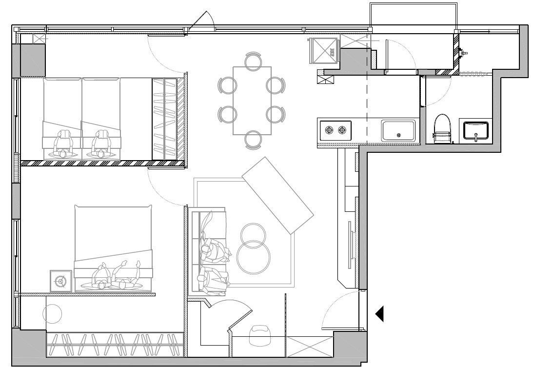
當年輕的四口之家遇上超過 30 年的老屋,會激盪出什麼樣的改建創意呢?這間隱身在繁華都會中心的電梯華廈格局算是方正,而採光也相當良好,比較令人介意的是客廳角落有個很占空間的樑柱,遮不掉也擋不了。
21 坪的空間有限,於是至文室內裝修團隊在公共領域採取開放式設計,雖然額外隔出玄關,但以粗細不一、間距各異的鐵件組合,讓視覺無礙穿越的同時,又能區隔使用空間。仿石材與木質建材的交互運用,從客廳延伸至餐廳、廚房,剛硬的冷調與木材的溫潤形成對比,中和了空間調性。
雖然沒有過多華麗的裝潢,卻利用線條在空間留下有意思的軌跡,沙發背牆的直紋其實隱藏了通往主臥與次臥的入口,而環繞客廳上方的粗黑框為平凡的白色天花板勾勒出帶有層次感的輪廓,連迷你儲藏室櫃門的中線都要與書桌齊高,在簡單俐落的空間裡,創造出與眾不同的小趣味。

私房秘技 x 4
私房秘技 01 鐵件屏風粗細不一 消除牢籠感
穿透式的屏風配合復古的六角磚,區隔出玄關空間,刻意以粗細不一、間距各異的鐵件組合,消除牢籠的疑慮,而懸空的灰色鞋櫃中間也挖空,大大減輕櫃體的壓力(左圖)。鏤空的鐵件格柵屏風,既不會讓訪客進門就撞上一堵牆,也不至於把室內一眼看光光,界線在若有似無間仍然發揮作用(右圖)。

私房秘技 02 畸零空間善加利用 收納機能大
格柵屏風後的小空間擺上書桌,就成為開放式的迷你書房。書房與沙發之間,原本是 L 型的大樑柱,乾脆做成小小儲藏室,而且做成斜的,剛好連結書房與客廳 2 個空間,又能收納大型物品。值得注意的是,除了天花板有粗黑框環繞外,儲藏室櫃門的中線裝飾也與書桌齊高,這些都是至文團隊的小巧思,大量運用線條,為空間注入活潑元素。

私房秘技 03 直紋背牆隱藏入口 純淨又立體
線條的運用不止為空間增添活潑感,也順勢隱藏了私領域的入口。沙發背牆的細直紋牆面給人相當純淨的感覺,卻又帶有立體感,不會過於無聊,一路延伸到餐廳,主臥與次臥的入口就分別在沙發後與靠窗處(左圖)。採光也很優的主臥室還有空間做出更衣室,粉嫩的色調與公共空間的冷調灰有所區別,為了迎接新生命的到來,連床頭都是圓角處理,很是窩心(右圖)。

私房秘技 04 不做滿滿滿的櫥櫃 空間喘口氣
有人說最好的收納就是「斷捨離」,本案中並沒有滿滿滿的收納,反而將空間讓出來,讓居住者喘口氣。客廳電視牆的開放式層架雖然厚實,卻不會沉重(左圖),一牆之隔的開放式廚房採用結晶鋼烤與木皮、烤漆玻璃的組合,也展現另一種輕盈(右圖)。
