裝潢佈置、開運風水、生活百寶箱
「禪」自始至終是一種思想,追求生活的寧靜安穩感。設計師透過格柵的半遮掩性,捕捉穿越柵欄的秩序光影,使心境逐步沉澱,放下我執,以無我的智慧隱諱地界定使用區域。
設計師: 唯逸設計
房屋狀況: 半毛胚屋
空間坪數:82坪
空間格局: 五房三廳六衛
主要建材:A&AM淺野矽酸鈣板、立邦淨味全效塗料、日本珪藻土、EGGER系統板、栓木實木窗櫺門、貝格油漆、皮革裱板、KD木皮板、玻璃襯紗、杜邦水墨風華人造石、義大利米洞石、夏木漱石、進口壁紙
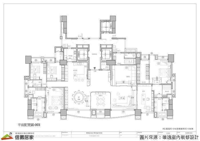
平面圖

設計理念

以單一線條組成兩個半圓為意象,連結家人間的情感,由家人們組合而成一個完整家庭,仍然以「格柵」鋪陳,交織出若隱若現的親密感,於光柵迷濛中,大觀禪境。
設計重點│玄關
玄關牆面設計一面圓形窗景,透過光影的映照,在空間中重新架構組織輪廓,另一側設置隱藏收納櫃,讓居家收納隱形顯得美觀不繁雜。玄關主牆轉角處的圓弧形水墨風華,便是概念意化後落實的呼應,並展延至中島區域。



設計重點│客廳
客廳延續全室的主要設計,以禪風拉門貫穿場域,巧妙與書房劃分場域,又能讓光線毫無阻礙地透入全室,光彩映照在夏木漱石的地板上顯得更為清澈純淨。優雅的黃銅展示台為角落帶來了光線和深度,耀眼的金色體現著華美氣息。


設計重點│餐廳
以大地色系做鋪陳,利用深淺的暖調性與雅緻的木質調,一輝一映的互相交融在空間中;不做空間分化,以開放式廚房放大餐廚範圍,陽光從餐廳的落地窗傾洩而入,映照在霧面金屬色的皮革板,誘出生生流轉、不息不倦的姿態。


設計重點│書房
書房特別選用木格柵,賦予直截了當的輕透感,以人為本的設計,注入機能實用與恬靜的細膩層次;整面的收納牆以一貫的深色木皮從牆上透過木地板延伸至格柵拉門,揉合出獨有的寧靜、細緻的空間表情。

設計重點│視聽室、棋藝室
視聽室保留玻璃門來隔絕聲音透入,另一方面也因為玻璃的通透,讓光感於室內暢然無阻。灰褐色珪藻土牆面鋪上細緻雪白銀狐,譜寫無壓純淨的安定感。灰藍色沙發靜謐穩立,深邃的柔光感漫射精緻的細節和別樣的質感、內斂低調而高貴奢華。
棋藝室用窗櫺門印刻禪意的想像,縷空設計讓日光無礙穿透照耀空間、昇華意境。



設計重點│主臥
主牆面兩側使用編織材料,象徵居者編織了「家」的凝聚力,木地板延續整體的溫柔細緻,透過窗外的光暈點綴了空間表情,床頭主牆的麂皮霧面絲絨烘托臥室暖度,柔美溫煦。
更衣室次主牆,鋪排方圓對稱,呼應生生不息的虛實印象,門片同樣採用窗櫺設計步入禪風意象。



設計重點│孝親房
孝親房整體以日式禪風勾勒靜謐的居家輪廓,床頭主牆刻劃日式拉門,用木作格柵的溫潤感柔和使用者的情緒,更衣室次主牆意念為儉樸、沉靜、穩重,暈染與主牆相同手法,推拉式不透明樟子門橫向切割蔓延穿引,彷彿生命綿綿不絕,而世界就是眼中大門的那般廣大,假如能夠放下前見,反而能夠獲得更多。

設計重點│男孩房、女孩房
牆面選用珪藻土塗料調節室內濕度,減少水氣與異味,透過珪藻土長效分解甲醛的優勢,打造健康的成長環境;灰白紋路木地板則敘寫場域的細緻溫柔,貫穿禪風人文的主概念。



設計團隊 | 唯逸室內裝修設計