房產新聞、房屋百科、新屋報導、法律常識
位於台北市北端的北投區,是多數人嚴寒冬天泡湯取暖的好去處。近些年隨著捷運新北投、北投站的交通建設加持,加上市區精華土地減少,以及政府的「北投士林科技園區」計畫,使得許多建商紛紛將建案轉向北投,讓過去地處北市邊陲地帶,房價相對低的態勢有些轉變。現在的北投的房價如同它的溫泉指數一般,強強滾。今天,小編就帶大家來到北投區的「新洋房」,看看名副其實的新洋房囉!
北投除了出了名的溫泉之外,其珠海特區更是國內許多達官貴人的居住地。其實來到北投撇開一般的高樓大廈不談,這裡的建築別有一番特色。不以多戶、高樓為訴求,反而以簡單、少樓層或別墅型的住家居多。新洋房就是其中一個五樓、每層二戶的單純住宅規劃建築。

↑↑↑大樓外觀:極簡、單純是新房洋此次規劃的訴求重點。
位在長壽路上的新洋房,位於捷運北投及新北投站線上。小編從新洋房基地步行,從沿路從長壽路到復興一路,再到中和街轉捷運新北投站約10分鐘之內。(新北投站步行會比較快)長壽街單純住宅區,生活採買可以步到7分鐘到中和街商圈購買。

↑↑↑新洋房周邊生活圖
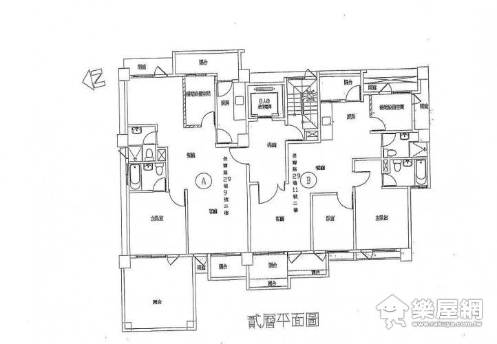
新洋房總基地面積只有157坪,總共為地上5樓、地下1樓為兩併式的建築。每層有A、B兩戶。一樓2戶,都為32.32坪,而二樓以上A戶為39.61坪,B戶為38.94坪。每坪開價從52~63萬。停車位為平面式,大型停車位為190萬、標準型為180萬。總價1988-2151之間,算台北市內少見的兩千萬可以買到的三房二廳新建案。除此之外,還有一點特別強調的是新洋房的銀行房貸可以高達八成哦。這一成的差別,相信能為不少人減少沈重的購屋壓力。

↑↑↑1樓平面圖:此為1樓2戶的格局。分別為32.32坪,二房二廳一衛規劃。

↑↑↑2樓平面圖:從2~5樓A戶為39.61坪、B為38.94坪

↑↑↑3、4樓平面圖

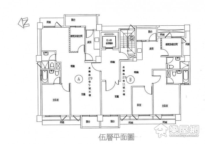
↑↑↑5樓平面圖
目前新洋房正在裝潢中,所以小編只能提供幾張照片,供大家參考。欲知詳情,來到新北投就可以直接一探究竟囉!

↑↑↑簡約大方的客廳

↑↑↑溫馨的餐廳空間

↑↑↑客、餐廳總側面
提到新洋房不得不提的一點,充份利用每份空間、發揮設計最大價值,可是新房洋的一大特色。多數人可能以為兩千萬以內買到三房二廳感到滿足,但一到頂樓時就覺得「有賺到」的感覺。頂樓電梯出來的交誼廳,以及外面的空間規劃~~及戶外美不勝收的 VIEW景,讓人感動!

↑↑↑頂樓電梯出來的沙發區:有80坪之大。
在這裡看看山景、喝喝咖啡…,人生夫復何求?

↑↑↑頂樓外面的交誼區
擔心自家陽台曬衣空間不夠嗎?別擔心,上了頂樓,管它衣服、棉被讓你一次曬個夠。

↑↑↑曬衣區
辛苦的家庭主婦曬累時,休息一兒,遠眺山景,放輕鬆!

↑↑↑室外山景
新洋房在頂樓就能看見復興高中。未來子女就讀不是問題。
↑↑↑新洋房對面的復興高中
看過周遭附近的環境之後,總要出來覓食、採買吧!來~~跟著小編從新洋房側面的復興一路來去購物去!

↑↑↑新洋房側外面的復興一路

↑↑↑復興一路沿路
從新洋房走到中和街、新北投站沿路除了來往的行人、車輛之外,還有小橋、流水~~!

↑↑↑復興一路上小橋下的清流小溪
從復興一路直走最後中和街交叉口即為中和街商圈。

↑↑↑中和街商圈

↑↑↑商家林立的中和街

↑↑↑占地5000坪的復興公園

↑↑↑著名的私立薇閣小學
原本有些擔心從新洋房走到新北投站有點距離,但一晃眼十分鐘以內就到囉!

↑↑↑新北投站

↑↑↑新北投商圈