搜尋

任你搜索,樂屋世界

搜尋

關鍵字:航空業

一共有:62筆"航空業"結果被找到
排序方式:
台灣選後投資大格局

台灣選後投資大格局

【文/謝金河】 過去幾個月,一直扣住人心的總統大選落幕,民進黨的賴清德、蕭美琴這一組以五五八萬票勝出,打敗國民黨的侯友宜、趙少康及民眾黨的柯文哲、吳欣盈,高懸在台灣上空的政治不確定因素也消除大半,那麼這場選舉影響的投資局面,我們逐一來釐清。 這次民進黨贏得總統大選,這意味了小英政府的路線獲得確保,從一九九六年迄今,過去二十年來,台灣一直上演著政黨輪替,像阿扁總統的八年,到馬總統的八年,這次小英總統的八年,民進黨的延續執政也遭到空前...

大股當道

大股當道

台股拉回600多點,台幣升值將有利台積電、金融股等族群;惟科技趨勢所在的AI供應鏈及記憶體加上面板,逢低可追蹤,配合高息利個股,春節後可望有表現。 【文/方亞申】 台灣總統大選結束,台股將回到與全球經濟及股市接軌,而新任總統賴清德於當選後的國際記者會中,表示現在是全球智慧化時代,台灣半導體產業扮演的角色相當關鍵,未來對於半導體產業發展將會繼續大力協助,包含材料、設備、研發、IC設計、製造、封裝測試等,讓具備優勢的半導體產業在台灣能夠更進...

架高地坪+半牆設計解放客廳空間!31 坪預售屋客變讓屋主夢想起飛

架高地坪+半牆設計解放客廳空間!31 坪預售屋客變讓屋主夢想起飛

編輯 Chloe Jheng|圖片提供 錡羽創意空間設計職業為航空業的屋主對於旅遊充滿熱情,購入的新居希望在室內空間保有不受拘束的開闊感。錡羽創意空間設計對 31 坪預售屋進行客變,以工業風格作為住宅基調呼應屋主職業。開放式落塵區整合了鞋櫃、穿鞋椅與理容鏡於一個量體,鞋櫃鐵網設計能修飾鞋履又能達到通風效果;一旁連接的矮櫃讓餐廳區的陽台採光能映照到落塵區,消弭玄關昏暗的問題。Home Data 設計公司:錡羽創意空間設計設計師:呂沅錡設計風格:工業風房屋狀況:預...

無懼打炒房影響!全台15大行政區 房價續創新高

無懼打炒房影響!全台15大行政區 房價續創新高

房市在政府打炒房、升息等利空下吹冷風,加上《平均地權條例》子法於25日預告,對房市無疑是雪上加霜,不過房價卻絲毫不受影響,反而逆勢上漲再創新高。根據《591實價登錄》統計2023年Q1七都各行政區房價對比2022年Q1,發現一年間仍有不少行政區房價創新高,其中漲幅最多的是台中市東區,今年Q1房價正式突破3字頭,寫下年增逾3成的佳績;另外,新竹市香山區、新北市八里區、台南市安南區等蛋白區,也有超過2成的漲勢,顯示房價沒有最貴只有更貴。 台中東區受大型建設...

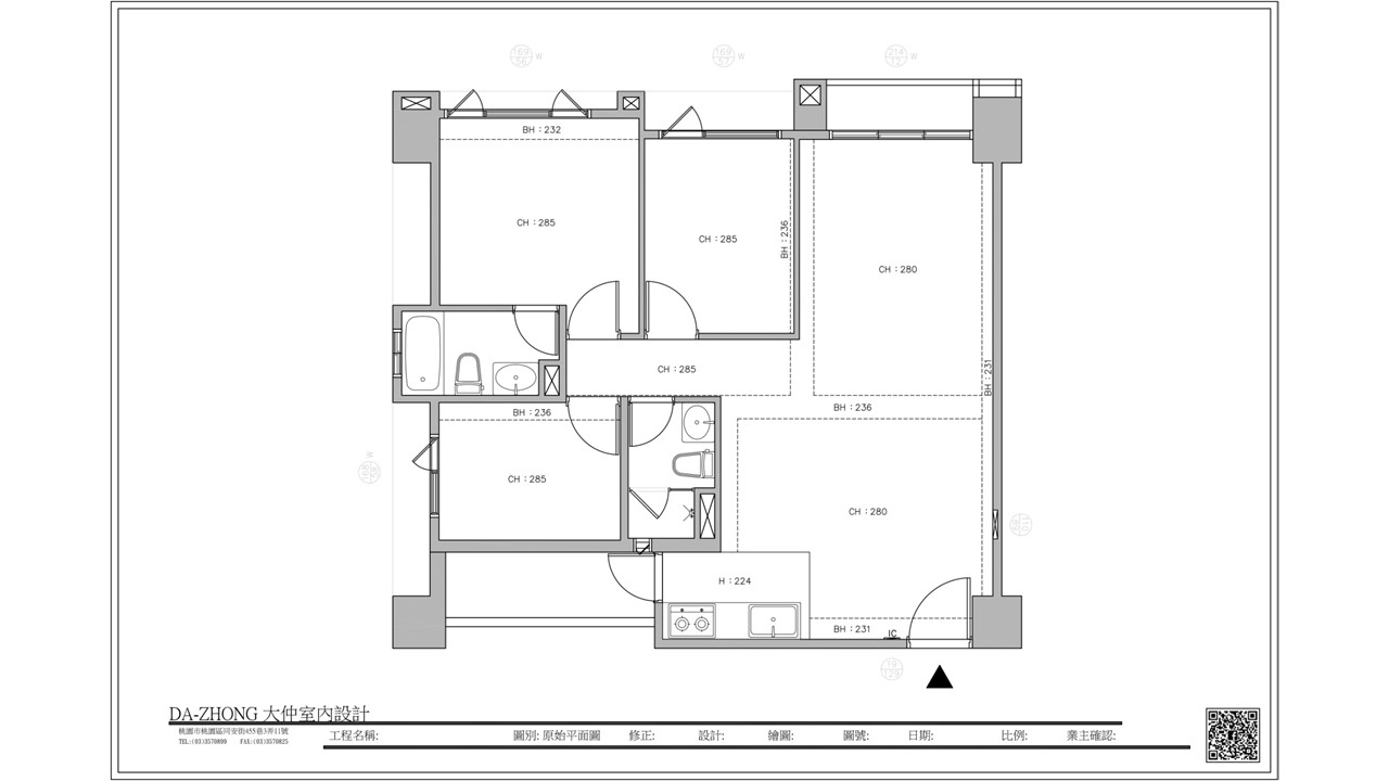
航空業小夫妻裝潢新家  「1巧思」玄關秒變登機門

航空業小夫妻裝潢新家 「1巧思」玄關秒變登機門

Claire設計師透露,此次委託他們設計的屋主,是一對桃園年輕的夫妻,剛開始他們到設計公司來的時候,還帶了自己做的一份簡報超級認真的!一看就是有做過功課,簡直是模範生屋主代表。Claire指出有先想過想要的需求,就會加速設計師對於這次設計的了解,大略聊完覺得其實架構很清晰,所以在平面配置上當然也是很快咻咻咻的完成了,Claire表示此次與業主的溝通也都蠻順利的,內心覺得超開心。 ★買房經驗分享、專家解析房市,挑房買房祕技看這邊 ★追蹤「EBC地產王」,買房...

七年級生買房最難? 資深房仲揭主因:等了個寂寞

七年級生買房最難? 資深房仲揭主因:等了個寂寞

「哪個世代買房最難」經常成為網友們討論的話題。近日,一名擔任房仲的網友分享自己工作10年觀察到的現象,認為「七年級生最難買房」,並指出主因在於「社會氛圍」。 ★【理財達人秀】台積電法說矛盾大對決?40歲以下年輕人安全股?★ 七年級生買房最難? 該名房仲在論壇PTT的home-sale版上發文表示,自己已工作10年,服務過各式各樣的客戶,客戶職業包含公務員、行政助理、金融業、航空業、上市上櫃公司負責人、傳產企業主,總數約2000多組,其中300多組成交,成交金...

上半年餐飲營業額年增1成  餐飲業者喜迎復甦

上半年餐飲營業額年增1成 餐飲業者喜迎復甦

根據財政部統計,受惠疫情趨緩、外食消費增加,加上去年同期基期較低,6月餐飲業營業額增至619億元,較上月增加7.5%,年增61.7%,年增幅度創下統計以來的新高,餐飲業上半年營業額達3990億元,年增1成,從統計可以發現餐飲業已經擺脫疫情以來的低迷市況。信義房屋不動產企研室專案經理曾敬德表示,去年因為疫情導致管制升級,餐飲業多只能做外帶等生意,導致單季營業額剩下1543億元,但現在餐廳已經可以內用,加上國人也逐漸適應疫情生活,餐飲業已經有反彈趨勢,現在店...

我家的客廳設計好有戲!3 款療癒系客廳,北歐風、小坪數這樣搭配

我家的客廳設計好有戲!3 款療癒系客廳,北歐風、小坪數這樣搭配

編輯 Nick Ting|圖片提供 澄月室內設計客廳是一個家的重點空間,無論是平日家人休息放鬆,或是假日邀約親友同歡,只要客廳設計得好,人就願意久待,沙發坐了舒服到不想起來。要達到療癒客廳的裝潢效果,必須注重許多細節,從室內格局的開放式設計與否,到臥榻、百葉窗、植栽等佈置如何取捨,都會影響到整體裝潢風格的舒適度及美感。澄月室內設計的吳宜倫設計師,以俐落耐看又實用的規劃手法,呈現出療癒的客廳設計,讓每位屋主都能找到專屬的生活儀式感。客廳是一個家的...

中華民國不動產聯盟總會 政策建言

中華民國不動產聯盟總會 政策建言

【網路地產王/綜合報導】日前舉辦年終記者會,會中對於2021年房市回顧及2022年展望,提出專業看法及分析,並對政府提出建言。林正雄理事長表示,2021房地產市場3大要素:景氣復甦、通貨膨脹與政府打房所組合。 2020年1/23武漢因COVID-19疫情封城,全球亦擴大邊境管制,全球服務業與航空業陷入停擺。所幸疫苗問世開始施打普及,加上各國政府採取量化寬鬆貨幣政策刺激消費,全球經濟壓力趨於和緩。 相較於各國,台灣疫情管控得宜,景氣對策訊號連10個月維持在熱絡階段,外...

桃園上南崁生活圈 雙北客搶進

桃園上南崁生活圈 雙北客搶進

鄰近桃機、南崁交流道,結合就業、文教、休閒、交通等優勢,獲年輕首購族青睞 南崁屬於桃園蘆竹的蛋黃區,依發展時期不同,又可區分為上南崁與下南崁,其中「上南崁生活圈」不只鄰近桃園機場,也距離新北市較近,結合就業、文教、休閒、交通完整機能,房價比起雙北親民許多,不少航空業上班的職員主管就近居住,主力道路包括蘆竹區吉林路、中山路、福祿一街和六福路等路段,因發展較早、生活機能完善,吸引不少雙北購屋族移居。 信義房屋南崁六福店主任劉嬙嬙表...