裝潢佈置、開運風水、生活百寶箱

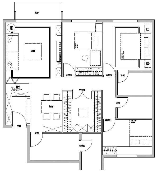
方正的格局、中規中矩的 4 房 2 廳分配,這個案子看起來好像沒有什麼特別的地方,作為一般的居家非常適宜,若是一般的室內設計師,可能就是加做些裝潢就了事。不過,蒔築設計的總監朱皇蒔沒有這麼輕易「妥協」,業主因為喜歡蒔築的設計 style 專程找上門,聆聽業主的需求當然成為第一任務。
空間規劃的很多細節取決於業主的生活需求,以 2 大 1 小的成員而言,4房2廳綽綽有餘,其中 1 房還可以規劃女主人一直夢想的更衣室。在仔細觀察房屋後,朱設計師發現,全室最陰暗的地方就在於中央位置,完全沒有窗戶。此外,業主的長輩偶而會來小住幾天,書房的需求又是必要的,因此如何兩全其美,也是朱設計師一直在思考的重點。
於是,在客廳規劃出隱藏書桌,再把全室最暗的小房間改造成最華麗夢幻的更衣室,外表看起來還是方方正正的保守 4 房格局,但實際上突破傳統,變成 5 種空間靈活運用,成為蒔築團隊送給業主的大驚喜。

私房祕技x 4
私房祕技 01 雙面櫃暗藏書桌 創造彈性空間
藕色系的主牆以白框裝飾,客廳顯得相當典雅,這是業主想要的法式古典風格。天花板特別在線板上裝飾茶鏡,更透露出些許華麗感,卻不至於顯得俗氣。因應主人需求,在靠近玄關的雙面櫃規畫隱藏的書桌(上圖),深度達 60 公分,還裝有照明,以折疊門開關,為客廳創造出彈性的閱讀工作空間(下圖)。


私房祕技 02 茶鏡妝點貴氣感 線性設計延伸


私房祕技 03 純白空間+浮雕 洋溢法式風情
更衣室位於全屋的中間,沒有窗戶也沒有可供通風的管道,原本是條件最差的一個空間,但朱設計師選中這裡作為靠近主臥的更衣室,以白色的線板+繁複的雕飾,配上閃亮的水晶燈飾及把手,將它妝點成華麗的秀場。


私房祕技 04 私領域顏色轉換 營造沉靜氛圍

