文、整理_李芮安 圖片提供_瓦悅設計
胡來順設計師,講究比例、動線的流暢度,表現空間張力,挖掘空間可能性,精湛設計透出明亮清新氛圍,展現完美休閒的人文精神。這次設計案是 16.5 坪的三口之家,設計師從改變格局、引進光線和空氣對流開始,延伸視覺逐步打造純白色系的夢幻住宅。
Home Data
- 設計公司:瓦悅設計
- 設計師:胡來順
- 設計風格:現代風
- 房屋狀況:中古屋
- 空間坪數:16.5坪
- 空間格局:2房1廳
- 主要建材:石英磚、白色噴漆、人造石、鐵件

胡來順設計師,講究比例、動線的流暢度,表現空間張力,挖掘空間可能性,精湛設計透出明亮清新氛圍,展現完美休閒的人文精神。這次設計案是 16.5 坪的三口之家,設計師從改變格局、引進光線和空氣對流開始,延伸視覺逐步打造純白色系的夢幻住宅。


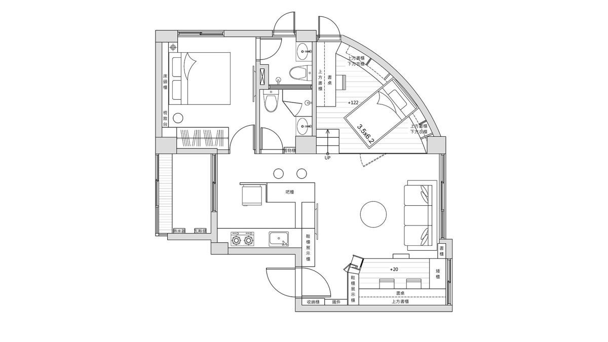
原來房屋一進門是有壓迫感的牆面,另外還有一面牆呈現圓弧形等難題。

設計師將玄關的牆改為斜角度的收納櫃,開放一進門的視線範圍。

利用房屋原本充足的高度,將收納櫃等設計精巧地融入女兒房空間中,而房間主體以輕透玻璃區與客廳做區隔,房間有如精品展示櫃,更有放大視覺的效果。

櫃體、書桌以及床斜擺,不只是順應圓弧空間的結果,也需要精準計算過比例美感。

原來前屋主擺放客廳沙發的位置,成為屋主喜愛的書房區,以架高地面做區隔,不遮蔽視覺就能成就一處悠閒舒適的角落。

女兒房同時也是家中最棒的景觀台。與電視牆隔著的是廚房與餐廳區,不阻礙從客廳到後陽台的動線,讓空間彼此產生對話。

主臥空間設計節奏放鬆,呈現舒適的氛圍,以鏡面線條為空間精緻點綴。

平面圖提供_瓦悅設計
胡來順設計師轉換原始坐向,驚奇地創造了更多可運用空間,廊道拉平的門櫃收整了客浴、收納櫃牆,整體時尚清新的白色,空間有如放大了 2 倍,純白色的家也像是一塊畫布,白天日光演繹每天自然的變化,夜晚在室內暖光的投映下又為家中染上一層溫暖,讓人每天都想待在家裡。
※本案將於《設計家》電視節目中播出
《設計家》播出時間:
【非凡新聞台 CH 58 】
首播 2016 / 10 / 29 (六) 深夜 24:00
重播 2016 / 10 / 30 (日) 上午 10:00
【台視 CH 8 】
首播 2016 / 11 / 5 (六) 上午 09︰00
重播 2016 / 11 / 6 (日) 上午 06︰30
Designer Data
相關閱讀