裝潢佈置、開運風水、生活百寶箱

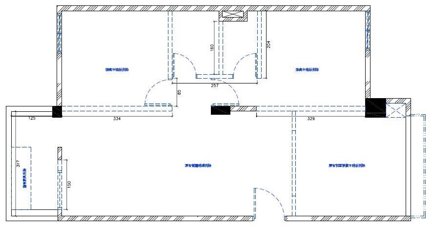
30 幾年的中古公寓,橫長的格局頗為方整,但由於室內僅有 22 坪,而且,屋主先前為爭取房間數及可使用面積,把原本應是客廳的地方裝修成和室,還利用深度頗足的後陽台改造成廚房。和室遮住了大窗的採光,讓室內顯得幽暗;縮居於陽台的廚房也因腹地有限,只能簡陋地配置。再加上原本的兩間臥房在尺寸上總是差了那麼一點點,房裡沒法配置整排櫃體,嚴重欠缺收納衣物的機能。而屋主因為大兒子即將結婚、剛退伍的小兒子就要踏入社會就業,想將這間舊屋裝修,讓給兩個兒子來使用。双設計傾聽屋主心聲,為他們擬出改造這個中古小宅的裝修關鍵:「將全部的空間拉回正常小家庭應享有的尺度。」


設計密技 x 4
設計密技 01 擋光的和室 OUT!室內亮起來
這間房子在未裝修前,前半段的右側設置和室,導致面積有限的公共區域顯得更擁擠,也引發了客餐廳採光不足的問題。「現在取消和室 ,將客廳遷移到屋子右側。」客廳連同餐廳、廚房形成一個共約 12 坪的大型空間,屋子前後端的天光少掉了嚴重遮擋,一進門就能感受這房子的明亮與寬敞。

設計密技 02 廚房 IN!打造家人共樂的餐飲空間
其實,此案調整幅度較大的區塊要算是廚房了!前任屋主將廚房設在原為半戶外空間、用來晾曬衣物的後陽台;又從陽台女兒牆往外加設一道鐵窗,洗好的衣物就晾曬在鐵窗內的狹窄空間。
雖說後陽台夠深,但若當成廚房來使用,空間就顯得捉襟見肘了,只能簡陋地配置一道小小的流理台跟吊櫃。非但無法納入更多的廚房家電與設備,儲物空間更是明顯不足。
双設計將廚房拉回室內,把後陽台歸還給洗衣機跟曬衣空間。從此,晾曬中的衣服再也不怕油煙汙染 ,也不用擔心天氣突然變壞時會被風吹落、被雨淋濕了。至於遷回室內的廚房呢?首先,面積變大了,能容納更完整的廚房設備;檯面也增長為兩米二,料理空間與儲物空間順勢跟著擴充。再加上由設計師規劃的櫥櫃與造型簡約的高級五金,怎麼看怎麼大器!
双設計還幫屋主考慮:屋主的母親經常來這裡為家人下廚。長輩喜歡大火快炒,為避免油煙亂竄,特意在廚房外側加設一道拉門以阻絕油煙。這道廚房拉門為黑色鐵框條紋玻璃,既透光又能遮擋視線。白天時段,即使關上這道門,廚房或餐廳都不會因此變得陰暗。

設計密技 03 桌面讓一點,出入變得更順暢
經過整併的客餐廳,整體格局仍呈長方形。由於這個開放空間面寬僅有三米,用餐區由於坪數與出入房間動線的限制,沒法將四人座長桌順著空間的長軸來擺設,只能橫放。但,直接放入餐桌之後,出入房間的通道就變得很窄。為恐出入之際不小心碰撞家具,双設計再次發揮急智巧思,將桌板嵌入牆內。如此一來,出入走道就能擁有一米二的寬度了。

設計密技 04 隔牆稍移,臥房就能有整排落地櫃
原有的兩間臥房分別是附帶衛浴間的大主臥,以及塞進床鋪跟一座衣櫃之後就沒啥迴旋空間的次臥。主臥預計由大兒子將來結婚之後由年輕夫妻使用,次臥則是給剛退伍準備當社會新鮮人的小兒子使用。由於次臥實在窄小,勢必得擴充。至於面積聽起來頗寬裕的主臥,實際上也因為尺寸就是差了那麼一點點,而沒有空間可配置整排衣櫃,只能買個衣櫥擠在角落。
双設計擅長以精簡手法解決複雜問題,決定幫屋主調整這兩間臥房,讓房間的尺度變得更合宜。首先,透過挪移主臥與次臥之間的主臥衛浴及公用浴廁來拉近這兩間臥房的比例。接著,再將這兩間臥房的隔間牆分別向客餐廳略為挪移,以爭取臥房的可使用面積。
「其實都只是作些微調。」張合群設計師表示,敲掉原有隔間之後,只是將牆面稍微挪移 15 公分。但如此一來,主臥就有了餘地設置面寬兩米三的落地衣櫃。次臥也因此得以規劃整排衣櫃,還能在靠窗處設置閱讀大桌。


小編最愛
由於是中古屋裝修,此案的預算有很高比例都花費在看不見的基礎工程了,表面的裝潢就只能在有限經費裡盡可能地發揮巧思。次臥採用複合式的設計,若有必要時,不只可以當做書房,也能充作客房,就是小錢創造大效果的絕佳例子。
双設計在為客戶規劃案子時始終堅持這樣的理念:「除了風水考量,規劃住宅空間時也會盡量按照屋主需求來進行設計。」像是這間次臥房的使用者很希望能有足夠的收納空間,還要在房間裡設置書桌。這兩項需求都透過調整隔間牆而達成目標了。
至於在美感的呈現,由於整個空間沒餘地也沒餘錢打造多餘的修飾,就連床組或書桌等家具也都是採買市售現成品。但由於屋主大兒子曾表示過他喜歡空間有些層次感,設計師選擇將床頭背牆刷上優雅的靛藍,運用簡潔的跳色手法,讓這個平凡、簡約的空間有了設計感,也滿足了使用者的心理需求。
