裝潢佈置、開運風水、生活百寶箱

設計滿足需求,是舒適生活的第一步,質樸建材、自然光影醞釀而出的悠閒氛圍,更是令人留戀家中身心放鬆的關鍵。凸顯材質的原味,發揮光線的優勢,正是禾光設計團隊一直以來秉持的設計核心。
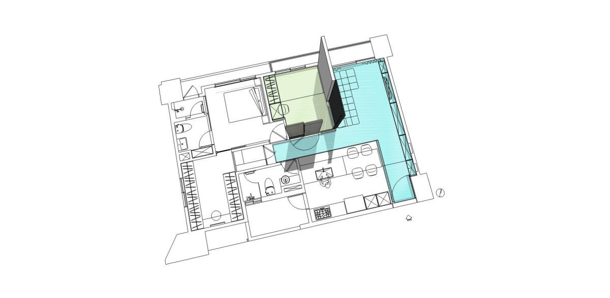
在這個僅僅 24 坪的居家中,藉由開放規劃去除格局限制,輕薄穿透的材質展現輕盈,讓陽光空氣在空間自由穿梭,把自然的生命力與機能的實用性,在模糊的邊界裡,和諧交融。這個平實中有著屋主格調的案子,不但在 2017 年香港亞洲室內設計大獎拿下小型住宅空間優秀獎,更獲得 2018 iF 室內設計大獎。
身為頂客族的屋主夫妻,喜愛旅遊,從飯店住宿得來美好經驗,希望家也有相同的舒適與質感。寬闊公領域,自在主臥室,彈性多功能房,讓好客的他們樂於在家大展廚藝招待好友,又能在計畫迎接新生命之前,盡情享受兩人的甜蜜世界。

客廳與可隨需求開展的多功能房,與專業又大器的餐廚區,各自占據了整個家四分之一的面積,是最重要的生活重心。跳色的沙發是歐洲品牌 B&B,極軟而舒適;時鐘是西班牙品牌 Nomon 的 Cris G 壁鐘,甚至連開關面板也使用德國歐規的「GIRA」。沒有過多贅飾,卻藉由具質感的家具軟件為空間加分。
沙發牆後保留局部實牆,適時遮掩床榻,再銜接環保有機的染黑沃克板門片,圍成多功能書房兼客房,平時敞開,光線得以與客廳、餐廚區串聯,帶來滿室明亮,這裡也是男主人玩電遊的小天地,而太太就在餐廳看書上網,相依相伴。當父母朋友偶訪留宿,拉上門片就成獨立空間,門片上更鐫刻著兩人的英文名字,打造專屬印記。
廚房有著專業的各種烹飪電器,以大中島連接餐桌,甚至有升降插座,全面考量實際生活需求,最適合親朋好友團聚開趴,藉由美食來互動;餐桌平日也能變成書桌,讓兩人在此上網、閱讀、思考或談心,隨心所欲享受生活。





主臥以清透的灰玻作為寢區與浴室的透明邊界,也為了讓光線能恣意流動,延伸空間的視覺尺寸,以隔而不分的設計,展示大方卻親暱的私密感。而粉紅色的更衣間,色彩鮮豔,收納充足,是女主人最令朋友羨慕的浪漫變身舞台。


電視嵌入櫃體,頂天卻未落地,為的是連結上方大樑一體成型,化解存在感,卻在下方懸空配置照明,營造輕盈感,虛實交映,更增層次。
