房產新聞、房屋百科、新屋報導、法律常識
素有「台灣矽谷」稱號的新竹科學園區,目前約有12萬人在園區內工作,可想而知,竹科人對於周邊的居住需求是很高的。而竹科北側有關埔重劃區,是由關長計畫加上光埔計畫聯名而成,小編今天要介紹的就是位於關埔重劃區慈雲路上的「東方明珠」。
從竹北的自強南路過了經國橋之後,接到慈雲路也就進入了新竹市,再繼續直走就可以進入竹科,而東方明珠緊鄰慈雲路,就地理位置的優勢即受到不少竹科人的青睞。而東方明珠最大的訴求點就是引進「紀伊國屋書店」為社區的圖書館做專業的規劃指導,以滿足竹科人追求國際性知識的欲望。

↑↑↑東方明珠外觀

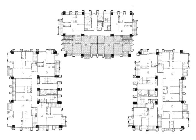
↑↑↑此為東方明珠基地平面圖,總共規畫了三大棟,左右兩棟都是5併,中間是4併。
前文提到東方明珠引進「紀伊國屋書店」規劃社區圖書館,這個社區圖書館就規劃在中間B棟的二樓,占地170坪,也規畫有閱讀區、兒童創意館跟才藝課輔學院,看來這邊的小朋友,下課應該可以不用去外面的安親班,可以回到家裡的社區安親班了!
再來看看內部的樣子,第一間樣品屋是A5棟3+1房的格局。
↑↑↑A棟為5併格局,除了A3之外,其他都是雙面採光。

↑↑↑一進門左手邊是餐廳,還有一個很大的客廳!
不過這間樣品屋的設計,是有將原本位於客廳後方的房間隔間拿掉,使得客廳變得比較寬廣。

↑↑↑在門的這一側就是餐廳及廚房。
這間樣品屋在餐廳的旁邊設計了整面的酒櫃,酒櫃的右邊就是廚房的入口。

↑↑↑廚房是一字型的設計,但是因為這是3+1房的格局,小編會覺得廚房有點偏小了XD

↑↑↑從廚房的門口望像客廳的方向。

↑↑↑客廳擺上古典氣派的沙發挺有感覺的!

↑↑↑客廳的後方還是保留了一些空間,做為閱讀區。

↑↑↑在沙發後方的閱讀區(面談區XD)

↑↑↑走道左邊的第一間房間,規畫為小孩房。(看得出來是女孩房)

↑↑↑走道左邊的第二間房間,是為次臥房。

↑↑↑客用衛浴

↑↑↑位於走到最底端的主臥室

↑↑↑主臥床頭牆的後方規畫為衣帽間。(看起來真像精品展示間XD)

↑↑↑衣帽間的另外一側就是主臥衛浴。

↑↑↑主臥衛浴規畫了浴缸。
另一間樣品屋則是B5棟的2+1房格局。


↑↑↑這間的坪數較小,但是經過巧妙的裝潢設計,感覺也是挺舒適的。

↑↑↑客廳沙發的後方就是廚房。
設計師在中間還做了暗色的玻璃,讓煮飯的人也可以瞧見客廳的狀況。還有餐廳就設計在客廳的旁邊,這也是比較少見的格局,但也可以藉由餐桌的擺置來區隔客廳及廚房。

↑↑↑餐桌旁邊就是廚房,最底端的門外就是工作陽台。

↑↑↑一字型的廚房,不會太大,很適合小家庭!

↑↑↑餐廳的後方就是一間房間。


↑↑↑這是兩房之一

↑↑↑這是兩房之二
這兩間房間的坪數雖然沒有很大,但是放下雙人床之後,都孩有足夠的空間可以放下衣櫃以及留有方便走動的走道。


↑↑↑再換個角度看一下客廳與廚房

↑↑↑2+1房的格局,其中那一房,就是設計在大門邊的小和室。

↑↑↑可以當成小朋友的遊戲室或閱讀區,挺方便的!
這個社區挺適合在竹科上班的爸爸,在家當主婦的媽媽,還有家中有1~2個小孩的小家庭。尤其像第二種格局這樣坪數的房子,媽媽打掃起來也不會太累,而全家人的活動範圍都很集中,大家都可以知道彼此在做些什麼,小編覺得這樣的生活型態應該為讓全家的感情更為凝聚吧!對了!社區還有紀伊國屋書店規畫的圖書館,小編也很期待啊!