房產新聞、房屋百科、新屋報導、法律常識
台北市能擁有雙併五樓的電梯公寓,真是非常難得的建案!「綵彩」是一個低調的新建案,因為戶數少,物件又具有獨特性,沒有大肆的花錢在廣宣上,希望專注在建築本身,讓居住者可以在此找到自然自在的生活步調與知己。目前來看屋的買方以中研院院士、南港區域客為主,再加上居住汐止想成為台北市居民的人。
「綵彩」的基地面積約196坪,前面是12米寬的巷弄,建築形式是5F/B1的電梯公寓,開價62~68萬/坪間,共計10戶,9個車位,公設比29.97%,管理費80元/坪/月,1F規劃門廳與15坪的套房產品2戶,2~5F約45坪(3房2廳2衛)共8戶。

因為基地形狀不方正,所以建築師在規畫時,大膽的嘗試,讓建築物呈現V字型,大家可以從下面這張圖看到社區規劃。小編很欣賞這樣的想法,將原本看似缺點的條件用創意巧思化解,而且讓住戶變成每一個房間、每一間衛浴都能夠有足夠的採光與通風,還讓1F除了社區綠化外,1F住戶能擁有獨立花園。

因為此建案可售戶數少,沒有蓋樣品屋提供參觀,現場人員說明建材,包括:衛浴將有TOTO的免治馬桶、五合一抽風機、當層排氣;廚房使用杜邦檯面、六面結晶鋼烤、附三機;頂樓水塔採用長庚生技活水系統,讓社區用水更安全;詳細可以參考建案連結說明。以下小編就以傢配圖和大家分享心得~~
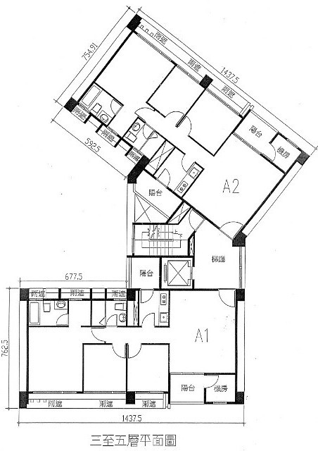
3~5F的A1格局傢配圖規劃如下,客廳、餐廳與廚房是開放空間,彼此串連互通,沒有圍牆阻隔;客廁規劃乾濕分離,有對外窗;兩間次臥室都有對外窗,且可放下雙人床、衣櫥與書桌;主臥室非常寬敞舒適,可以規劃一間小更衣室,廁所有浴缸也有對外窗。

2~5F的A2格局如下圖,基本上除了方向不同外,空間配置與A1格局差不多,客餐廚的開放空間,寬敞的主臥室,方正的內裝格局。

以生活機能而言,「綵彩」雖然不在鬧區,可是走路1分鐘內就有一間24hr的頂好生鮮超市,往汐止方向還有傳統市場,30秒可到公車站牌,公園小學都是步行約10分鐘可到達

↑↑↑頂好與「綵彩」間的關係就如這張圖一樣,一前一後非常的近

↑↑↑「綵彩」的路口有頂好、便利商店、警察局與公車站牌

↑↑↑有6班公車可達南港與台北市區,高速公路下的空間有規劃出休憩空間、籃球場與機車停車格,讓里民能利用這裡從事活動

↑↑↑里民公園,有很多大樹可以乘涼,小朋友遊戲區也實用
南港的利多不用小編多說大家應該都如數家珍,包括:南港軟體園區、南港展覽館、中研院、台灣流行音樂中心、三鐵共構等,如果在南港上班的人,又不喜歡重劃區的豪宅風,你可以來此走上一遭~