房產新聞、房屋百科、新屋報導、法律常識

如果碧潭再玻璃些
就可以照我憂傷的側影
如果舴艋舟再舴艋些
我的憂傷就滅頂
-《碧潭-載不動許多愁》余光中
清澈的湖水,搖晃的吊橋~這就是小編對於碧潭的印象。你呢?對於碧潭,你擁有什麼樣的印象?這天,小編一個人拜訪「啟昇 上碧潭」,獨自經過吊橋,突然想起了余光中的《碧潭》,心中想著是不是這樣的景色特別讓人容易感傷,有許多詩賦的內容總是跟河川、潭水、海洋...脫離不了關係。「水」似乎有種魔力,可以讓人變得感性,心情也就跟著變得輕鬆。
「啟昇 上碧潭」位於碧潭的西岸,在享有美景的同時也擁有東岸的便利生活圈,利用碧潭吊橋走到新店捷運站大約8~10分鐘的步行時間,同時這邊的碧潭路商圈白天是菜市場、晚上則像夜市一般,提供相當便利的購物、美食等機能。

↑↑↑上碧潭的接待中心就位於基地上。
啟昇 上碧潭的規劃總共有兩棟樓,一棟為旅館用地規劃地上10樓、地下3層,另一棟則為住宅用地,地上12樓,地下兩層。針對旅館用地小編也提出了疑問,是否購買了這邊的房子,就可以當成旅館使用,專案經理表示,是的,的確可以,但是未來不會有任何住戶登記營業,因為建照上明文規定,要整棟70個住戶統合而為一間旅館,才可登記營業。而對於旅館用地做為住宅使用,無所謂適法性的問題!?明文有規定:旅館用地不得做住宅使用,而上碧潭賣的是一個精品旅館空間,上碧潭必須完全參照旅館應該要有的方案設計規劃,否則無法通過審核及取得建照,旅館區是旅館的設計,只要不登記營業,一樣可以分戶設籍、繳交一般住宅優惠稅率、水電費與一般住宅完全相同,因此,啟昇上碧潭旅館區的產品並無適法性的問題。

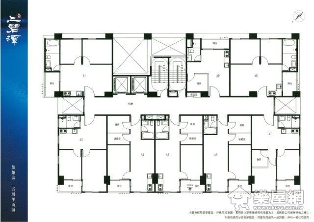
↑↑↑上碧潭旅館區平面圖
啟昇 上碧潭旅館區的格局規劃真的就如同一般旅館規畫一般,一層有8戶。外廊道就是飯店式長廊,但不同於一般飯店長而幽暗的長廊,啟昇 上碧潭公共長廊的部分兩邊皆有採光,小編倒是覺得偏向渡假飯店而非商務飯店的設計。
室內的格局規劃都為兩房的空間,坪數在16~25坪之間,而啟昇 上碧潭最具有創意的表現也在此,以平面圖中的A2、A3為例,這兩間都是規劃為兩房的格局,格局方正採光也很充足,尤其A2因為剛好為邊間,兩面都是大面寬的採光,小編真是愛死了這樣的陽光屋,畢竟除了水、陽光也是轉換心情的一種好物!
當專案經理為小編解說,這兩間其實可以拿掉中間其中一段的隔間牆,讓這兩間二合一時,小編的心情真是又驚又喜啊!(又不是自己的房子這麼驚喜幹嘛?)這樣就變成可以住大家庭的三房格局了。因此,啟昇上碧潭這邊不僅適合首購、小家庭、退休族群,也很適合小孩較多或三代同堂的大家庭,多元化的產品任君挑選。

↑↑↑這是小編自行加工的平面圖,拿掉了中間某一段隔間,就變成一間大三房的空間了。
而代銷所設計的樣品屋,就是依照這兩間的隔局,不僅僅是打造了兩間小坪數的樣品屋,同時也設計了中間的活動隔間,把那隔間一打開,就成了適合大家庭的較大坪數三房格局了!打開的納一瞬間還真的會令人心動,一下就訂了”兩間”呢!




(以上為樣品屋實景拍攝)
針對交通,啟昇 上碧潭打出「一高、二捷、三快」的Slogan,簡短有力的強調出這邊的交通特色。一高~北二高;二捷~新店線+環狀線捷運;三快~環河快速道路+64快速道路+信義快速道路,不僅對於每天利用捷運通勤或開車上班的上班族來說很方便,就算假日要出遊,利用北二高南來北往也很便利。

↑↑↑上碧潭位於交通便利的地段,但卻脫離了城市中的吵雜。
隱身在碧潭西岸的啟昇 上碧潭,其外觀也強調「沉靜」的感受,利用水平線條搭配木紋格柵,再加上低調的色系,呈現如同座落山林中的休閒旅店風格。

↑↑↑隱身寧靜的碧潭西岸,才能讓拖著疲憊身軀回家的你,享受真正的放鬆。

↑↑↑走出巷口就可以看到整片的碧潭風景。

↑↑↑經過這個吊橋,就到了碧潭東岸。

↑↑↑每天上班前都可以先欣賞一下美麗的風景。(懼高的小編走得戰戰兢兢的XD)

↑↑↑藍天青潭好風光帶來好心情。

↑↑↑碧潭中的天鵝是萌生愛意的好選擇。

↑↑↑上碧潭就位於圖中左側橘色高樓及右側白色飯店中間的巷弄中。

↑↑↑最後附上啟昇 上碧潭的3D外觀圖。
如果你喜歡碧潭的美景,但不想受到太多的打擾,想要離塵卻不離城的環境,那麼,小編誠摯的推薦你到「啟昇 上碧潭」來走一趟,一定會有嶄新的發現!
新北市板橋區信義路
公寓 27.05坪
1398萬 每坪51.68萬
新北市中和區華新街
公寓 31.85坪
1338萬 每坪42.01萬
新北市新店區安康路二段
公寓 31.08坪
1042萬 每坪33.53萬
新北市三重區重安街
公寓 22.08坪
1228萬 每坪55.62萬
新北市板橋區中山路二段
公寓 18.79坪
1060萬 每坪56.41萬
新北市土城區中央路一段
公寓 32.25坪
1488萬 每坪46.14萬
新北市板橋區自由路
公寓 27.04坪
1498萬 每坪55.4萬
新北市新店區永平街
公寓 32.54坪
1288萬 每坪39.58萬
新北市新店區北宜路二段
電梯大廈 27.64坪
1398萬 每坪50.58萬
新北市三峽區愛國路
電梯大廈 33.11坪
1198萬 每坪36.18萬
新北市三峽區長泰街
電梯大廈 28.88坪
1088萬 每坪37.67萬
新北市淡水區新春街
電梯大廈 32.94坪
1095萬
新北市新莊區中誠街
公寓 22.6坪
1338萬 每坪59.2萬
新北市三重區重新路四段
公寓 25.11坪
1158萬 每坪46.12萬
新北市三重區三民街
公寓 28坪
1360萬 每坪48.57萬
新北市蘆洲區永康街
公寓 31.44坪
1498萬 每坪47.65萬
新北市土城區青雲路
公寓 26.01坪
1148萬 每坪44.14萬
新北市汐止區大同路二段
公寓 26.67坪
1388萬 每坪52.04萬
新北市新店區安康路三段
公寓 25.54坪
1080萬
新北市土城區裕生路
公寓 25.52坪
1180萬 每坪46.24萬