房產新聞、房屋百科、新屋報導、法律常識
建築是沈默的個體,但土地的歷史卻能訴說著許多傳奇故事~~。在台北的大同區的保安宮、大稻埕、大龍峒…,是北台灣早期的發跡地,也是當年最具spot light的鬧區,見證著北台灣的發展史。這裡蘊藏著最富庶的人文古跡,及歷史匯粹。不過時代的改變往往覆蓋了這些豐富的記憶。既然,「那些年、有些事」我們來不及參與,不妨現在跟上2012的腳步走進「山河悅」,來趟山河之旅吧!
位在大同區及士林區交界的「山河悅」位於延平北路五段,靠近社子消防分隊。總基地368坪,樓上13樓高,地下3層樓的4併建築。其戶數共計50戶數。分別為48個住戶及2戶的店面。隔局為六十坪的三房二衛及四十坪的三~四房二衛。
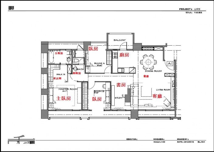
以下為六十坪的平面圖。從圖得知其隔局相十分方正,每個空間規劃適中,不會特別小或哪間特別大的極大落差。

↑↑↑ 平面圖
六十坪的隔局採自由規劃式,基本是三房,但可根據買家需求再自行隔到四房。不過,從寬敞的客廳到後方的書房(可單獨隔為一房),加上前陽台全落地窗戶的設計,讓原本客廳的觀感更為氣派。透過後方的書房擺設為客廳增添書卷氣,有別於一般單重視交誼的客廳功能,更具多元化。

↑↑↑客廳
客廳待累了,不想盯著電視看或要沈思工作時,back到後方的書房看看書、寫寫文案,偶爾轉個頭遙望一下窗外的風景,真是人生一大享受。

↑↑↑客廳後的書房

↑↑↑餐廳及廚房
購買大廈的民眾多半喜歡挑高樓層,買樓也買風景。不過,並非所有的大廈都能飽覽山河美景。同樣是高樓,一個放眼望去只能看見燈火通明的台北夜景,一個卻還能遠眺淡水、基隆河畔風光,你~~會選擇哪兒?這兒,不光客廳窗外有景,連每個房間都能遠眺美景。在山河悅,果真能群覽山河、享受觀景之樂!

↑↑↑左手邊進來的第一間臥房
第二間主臥房同樣有絕佳的窗景,同時空間更大。

↑↑↑第二間房:主臥房
主臥房隔壁的更衣間,適當的衣櫃空間不占空間也足夠放你一週的衣服或常穿搭的衣物。既通風、拿取又方便。

↑↑↑更衣間
強調衛設備採用杜拜帆船飯店的設備及規格。瞧~~這可是免治馬桶,一早起來或冬天上廁所不再屁股冷支支!而且萬一忘了帶衣服進浴室,洗完彭彭,也能立刻一旁的更衣間穿上衣服真方便!

↑↑↑主衛浴
第二套衛浴特別把洗手台隔間出來,增加主、客人運用的彈性。避免發生有人在裡頭使用時,其他人苦等要洗手的窘況。

↑↑↑副衛浴

↑↑↑第三間臥房
剛忘了一提,來~~~,走到客廳旁落地窗門外就能看見淡水河景。

↑↑↑陽台遠眺淡水河
大門走出來前廊的公共空間,左手邊則是安全門,再往前則是電梯。

↑↑↑大門
美景絕不僅於此!到頂樓的花園區,抬頭一看特藍的天空,瞬間心情都開朗了起來!而且,一邊遠眺淡水河,一邊則見基隆河!

↑↑↑寬闊無拘束的頂樓空間,可聊天、品茗看風景、賞夜景。
圓山飯店就在我家對面

↑↑↑基隆河
省下捷運公車錢到淡水,乘坐電梯上樓淡水河畔就是我家!

↑↑↑淡水河

↑↑↑目前大樓外觀
山河悅前面的延平北路,商店林立生活機能不煩惱。

↑↑↑街景

↑↑↑往台北方向
到市區有多班公車可到達,無論通往士林、台北車站、市區都極為便捷。

↑↑↑車牌