房產新聞、房屋百科、新屋報導、法律常識
要瞭解新建案的特色往往從名稱就能窺之一二,位在南京東路上的「南京175」就是其一最明顯的實例。南京取自路名,而175正是這個建案名牌號碼。簡單、明瞭的訴求,加上24.6%超低公設比的規劃正是南京175吸引買家的地方。在現今新建案平均公設比幾乎都超過百分之三十以上的比例來看,南京175能以僅24.6%公設比,可謂是台北市區中難得一見的新建案! TO SEE IS TO BELIEVE !現在我們就趕緊來看看這個打破公設比的新建案吧!
位在南京東路六段上的南京175,小編從信義區搭車到目的地,從東區上環東下舊宗路,大約只需20分鐘左右的時間。鄰近環東快速路上的南京175,可接市民大道、堤頂快速道路無論是要內科、大直、南港、基隆路等市區都十分方便。如果到外縣市,還可從附近的麥帥或成功交流道上北二高或北宜高;甚至出遠門到國外,從舊宗路接民權東路,就可以直接到達松山機場出國去囉!
如下圖可看見在環東快速道路附近的南京175,除了有便捷的交通之外,往北方向更是大家眾所皆知的眾多傳媒總部,還有許多大型購物中心,如大潤發、特力屋、家樂福、costco…等,集良好生活機能及交通方便於一身。

↑↑↑南京175交通圖
瞭解交通情況後,接下來的重頭戲就是內部的格局及坪數介紹了。老實說,南京175算是中小型的建案,其總基地面積114坪,為地上7樓地下1層的建築。坪數從29.76-48.12不等,房數為3-4房的規劃。其1樓一戶、2~3樓每層各2戶,4~7樓為每層一戶,目前銷售的樓層為3~7樓部分。
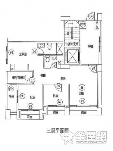
3樓為29.46坪為三房的格局,如下平面圖是3樓兩戶中的前戶。

↑↑↑3樓平面圖
4樓~6樓都是每層一戶,其坪數都是38.5坪三房二衛浴。但四樓多了約14坪的露台空間。

↑↑↑4樓平面圖
5樓與6樓的格局基本上都差不多。5樓也是等會兒要看的實品屋!

↑↑↑5樓平面圖

↑↑↑6樓平面圖
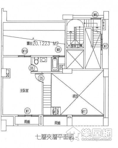
7樓為樓中樓,樓高為5.8米,上下兩層都是2.9米高度。坪數稍比3~6樓大一點,為48.12坪四房的規劃。

↑↑↑7樓平面圖

↑↑↑7樓夾層平面圖
從5樓大門打看就可能看見寬敞的客廳,還有明亮的採光。南京175的其一特色就是她的室內格間幾乎都有面窗。瞧瞧這偌大的落地窗,不只視野極佳拉大空間感之餘,也讓室內不用開燈也有自然光的照明。(啊~天然耶尚好!又省電)

↑↑↑客廳

↑↑↑書房:位在客廳沙發區後方的書房區。
從客廳直走偏右方就能看到餐廳及廚房區。

↑↑↑餐廳
比鄰的餐、廚設計,讓燒滾滾的菜餚煮好就能立即上桌,不費事!

↑↑↑開放式的廚房
位在面對餐桌左側方的主臥房,你現在看見只是她的三分之二空間。前方還有三分之一的地方還有擺放一個小沙發哦!

↑↑↑主臥室


↑↑↑主衛浴
光看房間就能應証小編的話。除了客廳、主臥房之外,她的每一個格間都有面窗。採光好、通風佳無疑是南京175的第二大賣點。這間看起來彷彿是大兒子/女孩的房間~~

↑↑↑位在餐廳右側的第一間房
老大房的房間(剛上述那一間)旁就是老二房間。打破了小編對中小坪數兒童房的印象。不只明亮而且又大,真是規劃出小朋友心中的os(誰說小孩只能住小房間?!)在這間彷彿是兒童臥房加書房加遊戲間的綜合體。

↑↑↑兒童房


↑↑↑乾濕分離的次衛浴

↑↑↑5樓出來的梯間(4~7樓每層一戶,不只住宅單純,而且還享受到獨大的梯間空間)

↑↑↑大樓外觀

↑↑↑南京東路六段的街道
復習一下!剛小編提到這裡有許多大型賣場,從南京175出來左轉的行善路111巷就能看見大潤發的招牌!

↑↑↑轉角行善路111巷口
行善路直行會走到行善路與舊宗路一段的交叉口。雖然車水馬龍,但來到這裡兒會發現這邊道路寬廣、整潔,抬頭一看的天空似乎比台北市其他地區還要清澈,一望無際的眼前景像好像來到歐洲的街道上。


↑↑↑行善路與舊宗路一段交叉口
從南京東路六段一路走到行善路再到舊宗路,要回家怎麼搭車?!別擔心舊宗路一段上眾多的公車路線、密集的班次想到哪兒都不成問題!

↑↑↑舊宗路一段上的公車站牌