作者_洪翠蓮 設計暨資料圖片提供_蒔築設計
很多老房子都顯得陰陰暗暗,空氣與光線像是凝結住了停留,沒有流動。有的設計師選擇大刀闊斧更動格局,有的設計師則是加開或加大窗戶,更厲害的則是稍微調整格局,重新設定生活動線,馬上就能讓老屋回春。
Home Data
- 設計公司:蒔築設計有限公司
- 設計師:朱皇蒔
- 設計風格:飯店風
- 房屋狀況:老屋
- 空間坪數:39坪
- 空間格局:3房2廳、更衣室
- 主要建材:灰鏡、茶鏡、木作、大理石、風化木、南方松、人造石、鋼琴烤漆、茶玻、鐵件

很多老房子都顯得陰陰暗暗,空氣與光線像是凝結住了停留,沒有流動。有的設計師選擇大刀闊斧更動格局,有的設計師則是加開或加大窗戶,更厲害的則是稍微調整格局,重新設定生活動線,馬上就能讓老屋回春。
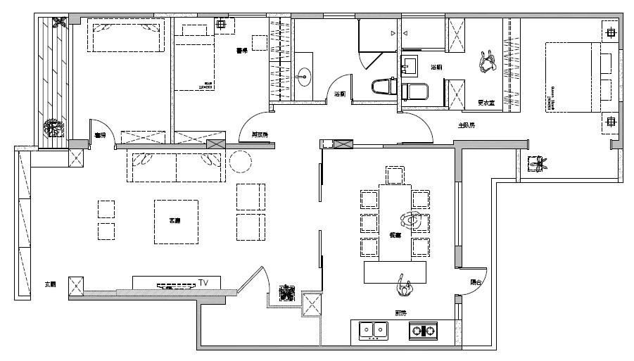
這間長型老屋擁有 3 面採光,還有超大的前後陽台,卻因為規劃不良,就算在大白天也要點亮日光燈,徒增房子的冷清感。年輕的業主對於設計接受度很高,對於蒔築設計的 ideas 幾乎照單全收,包括在客廳天花板做出波浪、在餐廳保留舊房門,以及把 2 個大陽台各自一分為二,讓空間運用更靈活。
於是,改頭換面過的老屋不但變得明亮,也顯得更為年輕,更由於蒔築設計的總監朱皇蒔貼心地將餐廚空間規畫成半開放式,更增加了家人互動機會, 3 口之家可以容納十幾、廿個家人,如今這裡成了親友聚會的最佳招待所。

平面圖提供_蒔築設計
私房秘技 x 4
私房秘技 01 波浪天花板成亮點 解除壓迫感

波浪布紋般的天花板雖然只有一小角,但已經讓整個空間因此舞動了起來!會做這樣的設計,其實是因為右側天花板上有樑,不得不包覆,卻又不想讓空間因此受到壓迫,於是以波浪取代平板,反而成為亮點。

電視牆採用整塊石材切割後,再拼貼而成,因為紋理系出同源,反而比用一整塊石材來得靈活輕盈;左右兩邊以茶鏡裝飾,既可以放大視覺空間,增加光線反射,左邊的一扇同時隱藏1坪大的儲藏室入口,減輕視覺雜亂的機會。
私房秘技 02 客餐廳供三代同堂 舊門添巧思

客廳連結的餐廚空間原本是個小房間加獨立廚房,合併後以對開式的大拉門做出區隔,拉門連結的是具穿透性茶玻,增加家人互動機會。拉門一開,客餐廳連成一片,三代同堂 20 人一起聚會都沒問題!

8 人大餐桌緊靠中島,這是女主人展現烘焙手藝的秀場。餐桌另一側的茶玻原是舊房門,保留開口換上茶玻,一來省預算,二來增加採光,三者保持家人互動,中間刻意做出木質平檯,保護玻璃,也能成為展示空間。
私房秘技 03 陽台分兩半做端景 日夜都迷人
BEFORE

對比改造前的客廳,白天還需要開燈,新的客廳空間顯得明亮許多,因為陽台的落地門拆除後,分為兩部分,一部分供客廳使用,做出半高的鞋櫃,再斜切做出穿鞋椅。
AFTER

另一半則以玻璃隔開,擺放盆栽做出端景感覺,成為書房的陽台。

陽台與客廳之間,做出超寬的門框,其實是為了隱藏柱子以及電視牆的機櫃,特別挑選的大型壁燈成為亮眼裝飾,夜幕低垂時,整個空間瀰漫浪漫氣氛。
私房秘技 04 主臥享受每日晨光 收納機能強

主臥與客廳一樣做出門框,其實是要把一半的後陽台納入範圍內,靠在舒服的床頭繃布背板上享受每天晨光,非常愜意。

床尾利用另一個小房間做出更衣室,收納機能強大,同時把原本的主臥衛浴開口隱藏在衣櫃中間,而且牆面貼上鏡子,製造出超大更衣空間的視覺效果。
同場加映 廊道改頭換面
對比改造前後,光是走廊的亮度就天差地遠,之前的房門上還開有氣窗,卻仍顯得昏暗,整修後的房門儘量拉到最高約 240 公分,空間就顯得大器許多。
BEFORE

AFTER

Designer Data