作者_洪翠蓮 設計暨資料圖片提供_蒔築設計
業主才買的新房子還是毛胚屋狀態,就迫不及待地找上蒔築設計幫忙整修,而且火速訂出完工日期,請蒔築團隊務必在親人回國前把一切搞定。這間小宅室內只有 13 坪多,業主希望規畫出 2 房空間,還要有客廳、閱讀空間及廚房……。考量到業主除了要提供給歸國親人一個落腳處外,日後也是自己會使用到的空間,如何在 13 坪空間裡創造另一個彈性空間,將坪效發揮到最大,是蒔築團隊思考的重點之一。
Home Data
- 設計公司:蒔築設計有限公司
- 設計師:朱皇蒔
- 設計風格:美式風
- 房屋狀況:新成屋
- 空間坪數:13.5坪
- 空間格局:2房1廳1衛
- 主要建材:大理石、茶鏡、壁紙、線板、特殊色漆

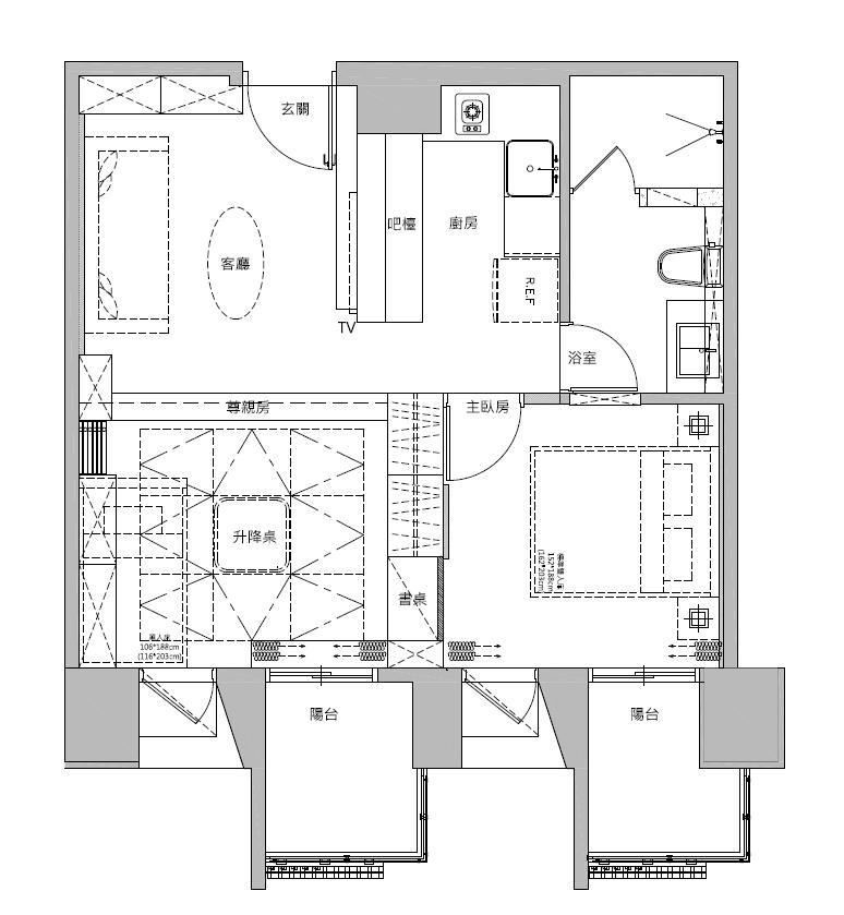
13坪小宅從毛胚屋狀態開始規畫, 1 + 1 房的格局,有令人稱歡的自然光及空間感,不會感到侷促。
旅居國外的家人要帶著小孩回國了,全家期待這個團圓的日子不是去訂大餐,而是連忙找設計師規畫空間,準備讓回鄉度假的遊子能在台灣有個舒適的「窩」。
業主才買的新房子還是毛胚屋狀態,就迫不及待地找上蒔築設計幫忙整修,而且火速訂出完工日期,請蒔築團隊務必在親人回國前把一切搞定。這間小宅室內只有 13 坪多,業主希望規畫出 2 房空間,還要有客廳、閱讀空間及廚房……。考量到業主除了要提供給歸國親人一個落腳處外,日後也是自己會使用到的空間,如何在 13 坪空間裡創造另一個彈性空間,將坪效發揮到最大,是蒔築團隊思考的重點之一。
於是,緊鄰客廳的空間以折疊門區隔,床鋪隱藏在櫃體裡,而茶几可以伸縮上下,機能齊全的雙人房在 5 分鐘之內就能變身明亮的書房兼交誼廳, 1 + 1 房的格局設計令人稱奇。其他如廚房的吧台也作為電視牆使用、浴室的隔牆做出雙面收納功能、多元化休憩室的階梯也可以當客廳的長椅用、隱藏在階梯下的夜燈既營造浪漫氛圍又能兼顧安全等,蒔築團隊成功地在 13 坪空間裡創造出 20 多坪空間效益,任務圓滿成功。

平面圖提供_蒔築設計
私房秘技 x 5
私房秘技 01 折疊間+隱藏床 一室多用途

因為從毛胚屋開始規畫,節省拆除實牆的時間及金錢。緊鄰客廳的空間以折疊門區隔,橫式床鋪其實隱藏在櫃體裡。

而茶几可以伸縮上下,機能齊全的雙人房在 5 分鐘內就能變身明亮的書房兼交誼廳。從客廳過渡到房間的牆面以開放展示櫃作為緩衝, 7 扇折疊門的收納形成一道假門,若沒有精準計算,做不出這麼剛剛好的排列。
私房秘技 02 架高地板收納 書房輕鬆坐

小宅的空間要發揮最大坪效,一物多用是不二法門。以整牆的收納櫃作為隔間牆就節省許多空間,在靠窗處做出小書房角落,高 40 公分的架高地板下除了茶几外,都是收納空間,而在書桌下並不做滿,而是留出空間當椅子用,置物層板還做出間接光源當輔助桌燈使用,實在貼心。
私房秘技 03 階梯體貼設計 團圓不怕擠

從客廳到多元化休憩室做出階梯,是為了長輩的安全考量,其中隱藏光源,既營造氛圍,又兼夜燈功能。來訪的親友眾多時,階梯也能作為長椅使用,一家人在 13 坪的空間裡可以盡情坐臥,暢談久別重逢的點點滴滴回憶。
私房秘技 04 吧台兼電視牆 走道不浪費

一進門就是客廳,利用廚房的半高吧台當隔間也兼電視牆,走道的寬度剛好增加沙發與電視的距離,又是一地多用的妙招。

房改成ㄇ字型,電視牆背後就是料理區,收納廚房家電,客廳與廚房共用雙面櫃,複雜的管線收得乾乾淨淨。
私房秘技 05 淋浴間雙面櫃 整齊好收納

業主一家不喜歡浴室裡的層架,但收納非做不可,於是加厚了淋浴間牆壁的厚度,做出雙面櫃兼隔間牆,再挖空做出收納空間。最高的噴砂玻璃格擺放洗髮精、沐浴乳,淋浴間使用;下方的 2 個格子高度,則方便使用馬桶時拿取,整排的鏡櫃提供放大空間的視覺效果,整齊又帶有時尚感。
Designer Data