裝潢佈置、開運風水、生活百寶箱
我常在說,做老屋翻新最重要的就是格局配置和結構判斷能力,這也是我最大的底氣,在中古屋市場中,屋主們的需求無非就是期許空間能夠更貼近實際使用習慣,我希望利用過去競競業業習得的成果,讓每一個客戶的生活都能變得更好。
-苡希創意設計總監 葉佳奇

本案是一棟位於大安區,屋齡約30年的舊公寓,屬於方正格局的室內空間總共約30坪,是典型的舊公寓四樓,由於過去裝潢不當,長久以來的漏水問題從未得到解決,致使家中上下前後左右六面牆幾乎被白蟻佔據,除此之外也存在嚴重採光不佳及地面傾斜的情況。
在平面圖左側,進門之後的玄關是完全沒有自然光線的,整個公領域的採光倚靠客廳左側書房的對外窗,然而如此一來除了光線必須先越過書房整個書房,本來就非常微弱,當書房門關上後,更是會直接失去光源。而由於臥室被排列在整個空間另一側,剩餘大部分的採光都被分佈在旁邊的臥房佔據了,但進到臥房內,聳立的八吋牆與門片又遮蔽了大部分光線,除了書房有微弱的光透進來,這個空間可以說是幾乎沒有其他光源,是非常不宜人居的。

改造前平面圖。

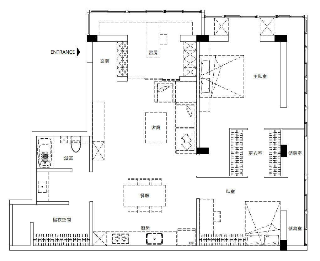
改造後平面圖。
本案首要的問題點在於光線,葉佳奇總監認為,老屋翻新最大的重點就是在安排人的動線與光的動線,而光線的走向又是安排空間動線的一大基礎,因此在最先進入、評估一個空間時,對葉佳奇總監來說,最重要的就是房子的迎光面與光線射入的方向、窗戶的位置與數量以及確保改動後每個領域的光源。
在玄關進門處的部分,設計師將玄關左側的位置做一個分割,拆除原先的牆面後,再把書房改為臥室外,也將這間臥室的門後挪,騰出的空間讓陽光得以照射進玄關,不會一進家門就感到陰暗潮濕。

改造前,玄關與書房。
設計師將客廳移至最斜對角,原先另一臥室的位置,是能最直接解決客廳、餐廳與廚房採光問題的方法,一開始業主對於將客廳擺放在最深處也有疑慮,比較無法消化,但由於玄關進門與置鞋處距離能一覽整個公領域僅三步之遙,反而在解放空間的同時亦保有了更多隱私性,最後也就沒有再多風水上的顧慮了。

改造前,客廳與電視櫃。

改造後,客廳與電視牆。
葉佳奇總監將書房改為臥室,動線上也把入口處移到玄關進門後左手邊盡頭處,原先一部分的書房被切開,讓玄關與臥房都能擁有很好的採光,而臥房內部的寬度,剛好能容納一張雙人床,必備的書桌與衣櫃皆齊全。

改造前,書房。

改造後,臥室一。
第二間臥房位在原先八吋牆與儲藏室所在位置,L型衣櫃與書桌相連接,同樣可以容納下雙人床的格局,拆除八吋牆的決定解放了最關鍵的迎光面,讓這間臥室擁有非常充足的光線,葉佳奇總監指出,八吋牆並非結構牆,加上起初該面八吋牆與樑就已是分開的,代表它並不具有支撐作用,因此研判可以拆除以換取更多採光,長久累積對房屋結構的了解與適時諮詢專業結構技師協助判斷,讓葉佳奇總監在改造老屋與規劃格局時能做出更多元的決策與創意。

改造前,原臥室。

改造後,臥室二。
設計師確保每個空間都擁有足夠採光與齊備的雙人床、書桌與衣櫃,主臥室也不例外,線性隱藏式的冷氣出風口,確保了本來樓高就不高的空間不會因機體顯得更狹隘,全室配色以舒服、簡單為主,另以少量深色材質與迎光面綠植作為點綴。

改造前,主臥室。

改造後,主臥室。
本案其中一個問題在於只有一間廁所,另一處糞管位置已不可考,由於業主一家四口作息皆不相同,沒有太多同時使用浴廁的需求,最後就以翻新原有浴廁為主,然而原則上以家庭來說,還是建議配有至少1.5套衛浴為主。

改造前,浴廁。

改造後,浴廁。
本來是計畫要把舊公寓轉賣而進行翻新的業主,除了最初驚訝於苡希設計對於格局跳脫框架的大膽想像,最後也因為太滿意成果而決定要自住,在換然一新的家裡面,女業主最喜歡坐在廚房吧檯旁的高腳椅上,這個位置能一覽從門口到客廳的全部空間,掌握家中每個成員的動向,也是整個空間格局開闊性與連貫性的體現。從這個圖中也能看到雖然移除了書房,設計師仍保留了一個由畸零空間改造而成的開放式閱讀區,而三個房間裡又各自擁有書桌與衣櫃,在三十坪的空間裡做到極致的兼顧整體動線與機能性。

設計師創造的通透性,讓空間能夠一覽無遺。
本案較棘手之處在於全屋幾乎都被白蟻佔據,除了有一柱體被蛀空築巢外,牆壁、地面到鋁窗框都有白蟻的道,設計師先將全屋拆除,並持續往排水孔灌水直至所有白蟻被沖出,前後也下了三次白蟻藥,加上整個施作過程都要克服地面八公分的傾斜角度,基礎工程部分是本案比較費力之處。

設計師聯絡方式:
苡希 E&C 創意設計
葉佳奇 主持設計師
02-2816-4538