房產新聞、房屋百科、新屋報導、法律常識
看到這幾張商圈照片,你絕對知道這次小編要帶你們去看的建案在哪裡!

有捷運站、有錢櫃、有誠品、有紅樓、有電影院、有血拼徒步大街……沒錯!就是西門町!
淺草居位居漢口街2段,屬於西門商圈的邊緣,可以擁有豐富的生活機能&休閒娛樂。
( 謎之音:每天回家都可以逛街、唱K、看電影耶~~但是薪水會每月透支 >////< )

↑↑↑淺草居與捷運西門站6號出口,從Google地圖顯示為350公尺,約步行5分鐘可達,非常的近,而且沿路都是店家商鋪,邊走邊逛一下子就到家了 (還是每天回家莫名其妙都走了1小時?!?! XDDDD)
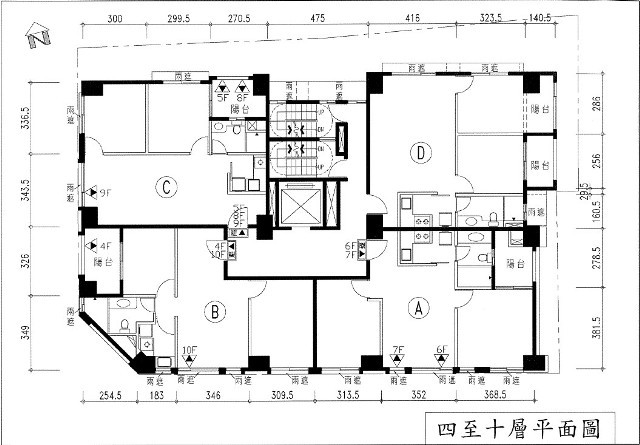
樓層規劃地上14F/地下4F,1F規劃店面與交誼廳,2F~11F規劃一層4戶兩房格局,12F~14F退縮成一層2戶2+1房格局,這樣的規劃讓戶戶邊間擁有雙面採光與陽台,且浴廁都有對外窗喔~

↑↑↑因臨近萬華運動中心,所以公設僅規劃交誼廳
淺草居坐落在商四用地,容積率高達800%,但公設比38.28%,坪數規劃30~37坪,平均每坪開價80萬,管理費80元/坪/月,地下室還規劃有機車停車位可使用。依據現場專案經理柯雅淳表示,目前購買者大多是有點年紀的華僑夫妻,生活在大安區與中正區域,他們看上這裡的原因,是因為地利的優勢,包括正在興建的雙子星大樓、西門捷運與商圈、正在動工的捷運松山線北門站……以半置產、半自住的想法購買此建案。
大樓實景外觀照

社區一樓出入大門,未來訪客就在大門右側與警衛管理員換證件

這裡是交誼廳,窗戶邊就是管理員的位置,可以收發信件並管制進入社區的出入人口

據現場柯專案經理表示,12F以上的2+1房格局已經都銷售完畢,現在僅2房格局可購買,以下為4F~10F的兩房格局圖,提供各位參考

接著就帶大家來看看位在2F-B戶的實品屋……下圖為家配圖,但設計師有稍稍修改配置,包括做一個完整的玄關、廚房&客廳改為開放式

獨立的玄關空間,讓鞋子有足夠的空間收納

客廳與廚房間的隔間牆打掉,改為料理檯面與吧台,開放式的空間更寬敞,窗邊還有一置物矮椅,客人多時也不怕客廳不夠坐。而且,你看出來這張照片藏有廁所的門嗎?!設計師很用心,把廁所門改為隱藏門,讓空間更為乾淨、時尚又實用。

客廳全貌,電視牆看起來很漂亮,但是小編心裡的OS是:灰塵怎麼清阿~~~~

因為小坪數的規劃,再加上現代人很少煮飯,所以只規劃單口瓦斯爐、抽油煙機、水槽、吧台,以及吧台右側的烘碗機

廁所規劃乾濕分離的淋浴空間、有對外窗、暖風機以及TOTO的免治馬桶

玄關後方比較小間的臥室,剛好可以擺放單人床、書桌、衣櫥、床頭櫃,並有出入陽台的落地門

主臥室進門就是衣櫥,窗邊規劃整面書桌,陽光充足

接著,就來看看C戶的實品屋,以下為家配圖,但實品屋是將客廳的電視牆位置與沙發位置顛倒,可提供大家另一種選擇~~

玄關,除置頂的整面鞋櫃外,居然還規劃出一個不小的儲藏室,這實品屋真的是規劃的非常用心

玄關即可看到客餐廳的空間,非常流暢的空間規劃與輕柔的色調,回家能有放鬆的感覺

小編很喜歡這客廳的沙發顏色,沉穩但不沉重,而且沒有沙發腳,整個看起來很時尚,還有旁邊那張單椅,非常有設計感,坐起來也很舒服~~

餐廳有整面的收納空間

廚房空間也有些微變更,且考量冰箱旁邊使用瓦斯爐的安全性問題,更改為單口電陶爐

看看這張照片,你會更清楚空間的規劃,包括玄關、廚房、餐廳及客廳的相對位置

廁所一樣是乾濕分離、有對外窗、暖風機、TOTO的免治馬桶

其中一間臥室規劃成書房,這空間大小可以規劃雙人床的房間,可依你對空間的使用需求做彈性的規劃

臥室空間暗藏玄機,本以為白色的門片為整面衣櫥,沒想到打開卻藏著化妝台,讓女主人的瓶瓶罐罐更好收納了~~(ㄟˊ~~這樣是收納嗎?其實就是拉起來,看不到就乾淨了~~YA~~XDDDDD)

陽台空間還算寬敞,放了三台室外機,還有洗衣機與晾衣的空間

因為淺草居的實品屋設計的實在用心,小編就幫大家問了購買要加多少錢?答案是總價加160萬!小編聽到倒吸好大一口氣,直呼好貴喔~~原來是包括所有家具冷氣(但不含擺飾),他們的家具的確看起來都很高級~~~喜歡便利生活的人可以到這裡看看喔~~