裝潢佈置、開運風水、生活百寶箱
初次聽見「樑柱外露」會以為是房子出了什麼樣的結構問題,但樑柱外露並不是像鋼筋外露那樣的結構問題,而是房子建築方式的不同。簡單的說,就是從建物的外觀是否可以看見樑柱,若看得見就是樑柱外露。
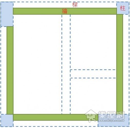
在一般興建房子的過程中,樑柱位置的決定是優先於牆的,因此樑柱是否外露就跟牆是建造較靠近樑柱的內側或外側有關了,現在我們就用圖來說明會更加清楚。

↑↑↑圖中虛線的部分為樑,填滿的部分為柱。
非樑柱外露
※圖解說明:
先從以往較常見的非樑柱外露的建造方式說起。若將牆建造的較靠近外側,則樑柱就不會外露,如下圖:

可使用的室內空間為圖中淡紅色的部分:

↑↑↑非樑柱外露的建物,室內空間就比較有稜有角。
※建案實例平面圖:

↑↑↑樑柱是包進房子裡的,突出的僅有陽台的部分。

↑↑↑非外露樑柱的建物,室內空間就會出現比較多的稜角,但可利用家具或裝潢加以修飾。
※建案實例外觀圖:

↑↑↑房子的外觀就會比較平整,但也可以說是比較沒有設計感,較為呆板。

↑↑↑這也是樑柱沒有外露,也就沒有所謂的窗台。
樑柱外露
※圖解說明:
近年比較盛行的則是樑柱外露的建構方式,這樣可以使室內空間較為整體。將牆建造的較靠近內側,就如下圖:

可使用的室內空間一樣為淡紅色的部分:

↑↑↑室內空間很完整,沒有突出的稜角問題。
※建案實例平面圖:

↑↑↑從圖中最下面的一整排柱子,都露在牆外。

↑↑↑因為樑柱外露,因此室內空間完整,運用方式較有彈性。
※建案實例外觀圖:

↑↑↑這樣外觀就看得出來有窗台、雨遮的空間。
一般說來,樑柱外露的建築設計,若以設計美學的觀點來說,因為其線條有層次較為美觀,因此外觀給人具現代設計感,因此多數較高單價的建案,會採用這樣的設計。而非外露樑柱的建案,公設比反而會較低,相對的室內使用面積就會比較多。只是建築外觀比較呆板沒有設計感,所以在商品定位上,就會用高使用坪效作為訴求,大多屬於相對低單價的建案。
高雄市左營區文天路
電梯大廈 36.49坪
858萬 每坪23.51萬
高雄市苓雅區林德街
公寓 18.04坪
628萬 每坪34.81萬
高雄市岡山區新樂街
電梯大廈 39.44坪
758萬 每坪19.22萬
高雄市旗山區花旗二路
別墅 26坪
668萬
高雄市鳥松區立群街
透天厝 36.88坪
988萬
高雄市三民區大豐二路
透天厝 20坪
998萬
高雄市六龜區新開
別墅 0坪
999萬
高雄市左營區文慈路
華廈 27.21坪
768萬 每坪28.22萬
高雄市鼓山區裕誠路
電梯大廈 34.2坪
799萬 每坪23.36萬
高雄市鳳山區西湖街
電梯大廈 32.88坪
728萬 每坪22.14萬
高雄市湖內區民生街
透天厝 24.92坪
780萬
高雄市前鎮區英明一路
公寓 22.65坪
568萬 每坪25萬
高雄市三民區民族一路
電梯大廈 43.96坪
998萬 每坪22.7萬
高雄市鳳山區過仁街
電梯大廈 50.06坪
858萬 每坪17.14萬
高雄市林園區忠孝東路
透天厝 54.38坪
698萬
高雄市前鎮區崗山東街
電梯大廈 37.3坪
898萬 每坪24.08萬
高雄市前鎮區瑞興街
電梯大廈 41.53坪
998萬 每坪24.03萬
高雄市三民區臥龍路
公寓 23.85坪
759萬
高雄市林園區西溪路
透天厝 40.28坪
648萬
高雄市三民區立忠路
公寓 26.34坪
588萬 每坪22.7萬